Honoraires à la charge de l'acquéreur (Prix hors honoraires : 0 euros).
Les charges de location sont prévisionnelles mensuelles avec régularisation annuelle.
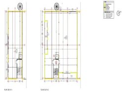
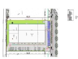
Local d'activité à louer - Le Mesnil-Amelot (26 km de Paris, 3 km de l'Aéroport de Paris-Charles de Gaulle). Situé au coeur de la dynamique zone industrielle du Mesnil-Amelot, à seulement 26 km de Paris et à 3 km de l'Aéroport de Paris-Charles de Gaulle, ce local d'activité propose une surface fonctionnelle et modulable idéale pour des activités industrielles ou de stockage. Caractéristiques principales : Surface au RDC: 300 m² (possible 600m²) Hauteur sous plafond (HSP) : 7,20 m (sauf Lot 1 : 6,50 m) Accès : 1 accès pour portes de type « PP/cellule » (4 x 4 m) Résistance au sol : 2 T/m² Consommation énergétique : 36 kWh/cellule Environnement et Accessibilité : Accès routiers : Situé à proximité immédiate de l'Aéroport de Paris-Charles de Gaulle, avec une excellente desserte par l'A1, l'A104 et la N104. Transports en commun : RER B (station Aéroport Charles de Gaulle) et plusieurs lignes de bus. Accès rapide à la Gare TGV Roissy CDG 2.- Ligne metro 17 Conditions de location : Dépôt de garantie : 3 mois de loyer HT/HC Ce local est idéal pour des activités de stockage, ou autre activité nécessitant une surface et des infrastructures modernes, tout en étant au coeur d'un environnement stratégique proche de l'aéroport et de Paris.
Honoraires de 5 400 HT à la charge du locataire. Dépôt de garantie 9 000 . DPE en cours. Les informations sur les risques auxquels ce bien est exposé sont disponibles sur le site Géorisques : georisques.gouv.fr.