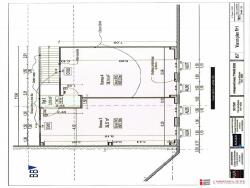
<p data-start="53" data-end="116"><strong data-start="118" data-end="223">L'immobilière d'entreprise vous propose à la location ce bien situé à Bédée, d'une surface de 640 m².</strong> Implantée au sein d'une zone dynamique avec une excellente visibilité depuis la voie express, cette cellule d'activité associe une large zone de stockage et des bureaux modernes.</p><p data-start="118" data-end="802">L'atelier/stockage de 472 m² dispose d'une belle hauteur sous plafond, adaptée aux activités industrielles ou logistiques.</p><p data-start="118" data-end="802">Les bureaux, d'une surface totale de 168,5 m², sont répartis sur deux niveaux : au rez-de-chaussée, 84,5 m² comprenant accueil, espace pause, bureau et vestiaires avec douche ; à l'étage, deux grands bureaux lumineux de 38 m² et 39 m² offrant une vue directe sur l'entrepôt.</p><p data-start="804" data-end="1166">Les caractéristiques techniques incluent une cloison coupe-feu prévue, deux portes sectionnelles de 3 x 3 m facilitant l'accès plain-pied (avec possibilité de deux quais niveleurs supplémentaires), ainsi qu'un grand nombre de places de stationnement. Un bien fonctionnel, parfaitement adapté aux besoins d'entreprises industrielles, artisanales ou logistiques.</p><p data-start="1168" data-end="1369" data-is-last-node="" data-is-only-node=""><strong data-start="1168" data-end="1208">Localisation : </strong>Bédée<br data-start="1208" data-end="1211"> <strong data-start="1211" data-end="1231">Surface : 640 m²</strong><br data-start="1231" data-end="1234"> <strong data-start="1234" data-end="1335">Accessibilité :</strong> Visibilité directe depuis la voie express, accès plain-pied, parkings disponibles<br data-start="1335" data-end="1338"> <strong data-start="1338" data-end="1367">Disponibilité : </strong>Immédiate</p>
DPE En cours
- Type de bail : Commercial
- Durée : 3/6/9 ans
- Fiscalité : TVA
- Indice : ILAT
- Indexation : Annuelle, date prise effet
- Dépôt de garantie : 3 mois HT
- Loyers et charges : Mensuels et d'avance
640 m²
Contact IMMOBILIERE D?ENTREPRISE RENNES
Contacter gratuitement à l'aide du formulaire ci-dessous.