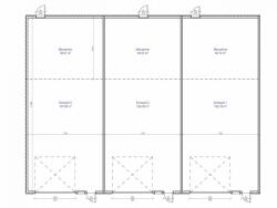
<p>Local composé de 107 m² au sol et de 38 m² de mezzanine bâtiment entièrement isolé avec skydome, livré brut fluides en attentes, avec des hauteurs de 6.50 à 7.20 mètres accès par porte de service et porte sectionnelle motorisée de 4.00 x 3.00 mH, installation électrique existante, éclairage compteur 220 et 380 V compteur 36 Kwa, fibre, terrain clos et bitumé avec stationnements privatifs, situé proches des grands axes de circulation. 3 Lots disponibles avec possibilité d'en prendre plusieurs.</p>
- Type de bail : Commercial
- Durée : 3/6/9 ans
- Préavis : 6 mois
- Fiscalité : TVA
- Indice : ILC
- Indexation : Annuelle, date prise effet
- Dépôt de garantie : 3 mois HT/HC
- Loyers et charges : Trimestriels et d'avance
145 m²
Contact Fabienne LAUDON
Contacter gratuitement à l'aide du formulaire ci-dessous.