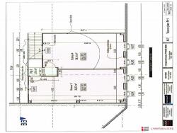
<p data-start="135" data-end="781"><strong data-start="135" data-end="240">L'immobilière d'entreprise vous propose à la location ce bien situé à Bédée, d'une surface de 640 m².</strong> Implantée dans une zone dynamique bénéficiant d'une excellente visibilité depuis la voie express, cette cellule d'activité combine une large surface de stockage avec des bureaux récents et bien aménagés. L'atelier de 472 m², doté d'une belle hauteur sous plafond, est parfaitement adapté aux activités industrielles ou logistiques. Les bureaux totalisent 168,5 m², répartis entre un rez-de-chaussée fonctionnel (accueil, espace pause, bureau, vestiaires avec douche) et un étage lumineux offrant deux grands bureaux avec vue sur l'entrepôt.</p><p data-start="783" data-end="1075">Le local bénéficie de prestations techniques de qualité : deux portes sectionnelles 3 x 3 m, cloison coupe-feu prévue, possibilité de création de deux quais niveleurs, et nombreux stationnements disponibles. Ce bien offre un cadre de travail efficace et adapté à divers usages professionnels.</p><p data-start="1077" data-end="1258"><strong data-start="1077" data-end="1095">Localisation :</strong> Bédée<br data-start="1101" data-end="1104"> <strong data-start="1104" data-end="1117">Surface :</strong> 640 m²<br data-start="1128" data-end="1131"> <strong data-start="1131" data-end="1150">Accessibilité :</strong> Visibilité directe voie express, accès plain-pied, parkings disponibles<br data-start="1222" data-end="1225"> <strong data-start="1225" data-end="1244">Disponibilité :</strong> Immédiate</p>
DPE En cours
- Type de bail : Commercial
- Durée : 3/6/9 ans
- Fiscalité : TVA
- Indice : ILAT
- Indexation : Annuelle, date prise effet
- Dépôt de garantie : 3 mois HT
- Loyers et charges : Mensuels et d'avance
640 m²
Contact IMMOBILIERE D?ENTREPRISE RENNES
Contacter gratuitement à l'aide du formulaire ci-dessous.