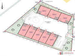
<p data-start="56" data-end="130"><strong data-start="132" data-end="262">L'immobilière d'entreprise vous propose à la vente ces biens situés à Bain-de-Bretagne, d'une surface d'environ 300 m² chacun.</strong></p>
- Cellule A : <strong>288,94 m²</strong>
- Cellule B : <strong>289,43 m²</strong>
- Cellule C : <strong>297,07 m²</strong>
- Cellule 4 :<strong> 278,48 m²</strong>
- Cellule 5 / 6 / 7 : <strong>279,19 m²</strong>
- Cellule 8 : <strong>290,31 m²</strong><p data-start="47" data-end="113">Intégrée dans un programme neuf, cette cellule d'activité se trouve au sein de la zone d'activités Château Gaillard, un secteur dynamique et stratégique. Sa proximité immédiate avec la voie rapide Rennes/Nantes lui confère une excellente accessibilité et visibilité, adaptée à une large gamme d'activités industrielles, artisanales ou commerciales. L'environnement professionnel en plein développement renforce l'attractivité de ce site pour tout projet d'implantation ou d'investissement.</p><p data-start="722" data-end="940"><strong data-start="722" data-end="740">Localisation :</strong> Bain-de-Bretagne<br data-start="778" data-end="781"><strong data-start="781" data-end="794">Surface :</strong> environ <strong>300</strong><strong data-start="795" data-end="807"> m²</strong><br data-start="807" data-end="810"><strong data-start="810" data-end="829">Accessibilité :</strong> Accès immédiat à la RN137 (axe Rennes/Nantes), zone aménagée<br data-start="890" data-end="893"><strong data-start="893" data-end="912">Disponibilité :</strong> À la livraison du programme</p>
DPE En cours
300 m²
1 200 €
Contact IMMOBILIERE D?ENTREPRISE RENNES
Contacter gratuitement à l'aide du formulaire ci-dessous.