Honoraires à la charge de l'acquéreur (Prix hors honoraires : 0 euros).
Les charges de location sont prévisionnelles mensuelles avec régularisation annuelle.
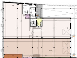
Disponible à la location, au sein du PAE Les Glaisins à Annecy-le-Vieux, au pied d'un immeuble tertiaire neuf qui sera livré au T1 2025, deux ateliers de stockage / activité d'une surface totale de 672m² ainsi que 7 stationnements privatifs inclus dans la location.
Prestations : - Portes-sectionnelles motorisées, - Luminaires, - Sanitaire, - Résistance de dalle : 1 000 kg/m², - Hauteur sous-plafond : 3,5m, - 30 KVA triphasé.
Conditions : - Bail commercial 3 / 6 / 9 ans, - Lot 1 : 389m² + 4 stationnements --> 46 680 hors taxes hors charges / an, - Lot 2 : 283m + 3 stationnements --> 33 960 hors taxes hors charges / an - Lot 1 + 2 : 672m² + 7 stationnements --> 80 640 hors taxes hors charges / an. - Taxe foncière et charges de copropriété en sus refacturées au preneur.
RESEAU BROKERS® est le premier cabinet immobilier d'entreprise structuré en réseau de mandataires. Nous maillons avec notre équipe de 80 Brokers une grande partie du territoire national pour accompagner nos entreprises clientes dans leurs recherches de commerces, bureaux, locaux d'activités, immeubles et fonciers. www.reseau-brokers.com
Honoraires de 7 002 HT à la charge du locataire. DPE en cours. Les informations sur les risques auxquels ce bien est exposé sont disponibles sur le site Géorisques : georisques.gouv.fr.