Honoraires à la charge de l'acquéreur (Prix hors honoraires : 0 euros).
Les charges de location sont prévisionnelles mensuelles avec régularisation annuelle.
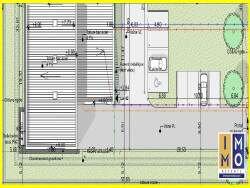
Local d'activité neufs - 310 m² à louer proche AUTOROUTE et ROCADE OUEST, comprenant un terrain clos avec 8 places de parking, un espace de bureaux de 101 m2, un atelier de 213 m2 avec porte sectionnelle et 5,50m sous ferme, et accès PL. loyer mensuel 3000 hors taxe + Tva, charges et Tf. Plus d'informations et visite sur demande à l'agence. Groupe IMMOREVENTE Mr PRAULT 06.33.10.99.08
Honoraires de 6 480 à la charge du locataire. Dépôt de garantie 6 000 . DPE vierge. Les informations sur les risques auxquels ce bien est exposé sont disponibles sur le site Géorisques : georisques.gouv.fr.
Local d'activités
314 m²
6480 %
2025
8
Contact Stéphane PRAULT
Contacter gratuitement à l'aide du formulaire ci-dessous.