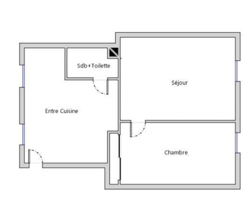
À proximité immédiate des commerces et à moins de 5 minutes à pied de la ligne 9, ce local à usage mixte habitation / commercial situé en RDC avec pignon sur rue offre une configuration rare et particulièrement polyvalente. D'une surface d'environ de 47m2 au sol dont 26,28m2 carrez, il se distingue par sa belle vitrine sur rue, constituant l'entrée principale du bien et offrant une visibilité immédiate, idéale pour une activité professionnelle, un bureau ou un espace d'accueil. La première pièce, d'environ 13 m2, bénéficie directement de cette ouverture sur rue, tandis qu'une seconde pièce plus discrète, tournée vers la cour, profite d'un environnement calme et d'une fenêtre apportant lumière et sérénité, parfaite pour un bureau indépendant ou une pièce annexe. Un second accès par la cour, via une porte indépendante, vient compléter cet agencement et constitue un atout fonctionnel appréciable au quotidien. Le niveau principal dispose également d'une kitchenette. Un escalier intérieur mène à un sous-sol d'environ 14 m2, aménagé dans une cave voûtée pleine de charme, comprenant une salle d'eau avec WC. L'ensemble est en très bon état général, soigné et prêt à être occupé immédiatement, sans travaux à prévoir. Un ravalement de façade a par ailleurs été voté et payé par la copropriété, apportant une valorisation supplémentaire à moyen terme. Un bien atypique, fonctionnel et rare sur le secteur, parfaitement adapté à une activité professionnelle calme, une profession libérale ou un usage mixte habitation et bureau. DPE D
47 m²
6 170 €
13 m²
3
2
1
212 € / mois
1926
Oui
Oui (36 lots)
Consommations énergétiques
Logement économe
307
Logement énergivore (kWhEP/m2/an)
Émissions de gaz à effet de serre
Faible émission de GES
10
Forte émission de GES(kgeqCO2/m2/an)
Contact LOUATI Imen
Contacter gratuitement à l'aide du formulaire ci-dessous.