ANDREZIEUX BOUTHEON (42160) Local industriel modulable en zone artisanale Situé au coeur d'une zone artisanale dynamique, à proximité immédiate d'un axe autoroutier, ce local industriel offre une surface au sol modulable selon vos besoins. Idéal pour activités artisanales, industrielles, de stockage ou logistique légère. Possibilité de vitrine. Le projet s'adapte à vos besoins
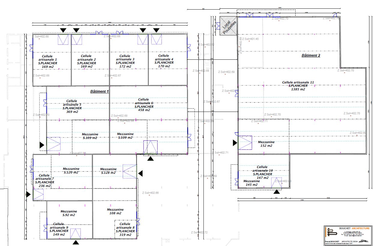
Local surface au sol 195 m² Mezzanine de 40 m² pour bureaux 2 places de stationnement PRIX : 303 195 HT (honoraires charge vendeur)
Caractéristiques principales : Surface au sol variable selon vos besoins (à partir de 100 m²) Livré brut, fluides en attente. Hauteur sous plafond confortable pour tout type d'exploitation Porte sectionnelle / accès livraison Bureaux et sanitaires (aménageables selon le projet en mezzanine) Parking privatif et environnement professionnel Accès rapide à l'autoroute et aux grands axes routiers Atouts : Emplacement stratégique Zone artisanale en plein essor Possibilité d'adaptation selon votre activité
? Contactez-nous dès aujourd'hui pour plus d'informations ou pour organiser une visite. Mentions légales: Les informations sur les risques auxquels les biens sont exposés sont disponibles sur le site Géorisques: www.georisques.gouv.fr, les honoraires sont à la charge du vendeur, notre barème est consultable sur notre site, . Pour toutes informations complémentaires Parlez-Moi d'Immo St Etienne vous propose de contacter Véronique KOEHL votre conseillère immobilier Indépendante (R.S.A.C. de SAINT ETIENNE N° 431234004) spécialisée sur le secteur au 06 58 67 42 50
Honoraires à la charge du vendeur. Non soumis au DPE. Les informations sur les risques auxquels ce bien est exposé sont disponibles sur le site Géorisques : georisques.gouv.fr.