Emplacement privilégié : Situé sur l'axe stratégique de la route de Bitche, ce local se trouve au 1er étage d'un immeuble à usage mixte, offrant une visibilité optimale. Vous serez à quelques pas du centre-ville, de la gare et des principaux axes autoroutiers, facilitant ainsi l'accès à votre clientèle et à vos collaborateurs.
Caractéristiques du bien :
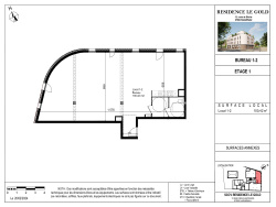
Superficie : 100,42 m2, idéale pour diverses activités professionnelles. État : Le local est livré prêt à l'emploi, avec des finitions de qualité, hors cloisonnement selon les spécifications techniques fournies par le promoteur, vous permettant de personnaliser l'espace selon vos besoins. Accessibilité : Conforme aux normes de mobilité réduite (P.M.R.), garantissant un accès facile à tous vos clients.
Prestations haut de gamme :
Fenêtres en triple vitrage : Design anthracite à l'extérieur et blanc à l'intérieur, offrant une excellente isolation thermique et acoustique. Visiophone : Pour un contrôle d'accès pratique et sécurisé. Choix de carrelage : Sélectionnez votre carrelage chez Matériaux SIEHR, avec des options jusqu'à 60 x 60 cm pour les sanitaires, et dalles moquettes dans les bureaux. Sanitaires modernes : WC suspendus avec plaque de commande GROHE et équipements sanitaires de haute qualité. Sécurité renforcée : Porte palière italienne DESIGN avec 3 points de sécurité. Ascenseur : Accès facile à tous les étages de l'immeuble. Esthétique extérieure : Pierres de parements sur certaines façades, ajoutant une touche contemporaine et élégante. Stationnements extérieurs : Emplacements réservés pour vos bureaux, facilitant l'accès pour vos clients et employés. Climatisation réversible : Pour un confort optimal tout au long de l'année. (Pompe à chaleur air/air avec compteur calorifique individuel)
Atouts majeurs :
Immeuble neuf : Bénéficiez d'un environnement moderne avec des finitions soignées et une architecture contemporaine qui reflète une image dynamique et professionnelle. Cadre de travail exceptionnel : Profitez d'un espace lumineux et convivial, propice à la productivité et à la créativité.
Options supplémentaires : Si vous avez besoin de plus d'espace, d'autres surfaces allant jusqu'à 361,00 m2 par niveau sont également disponibles, vous permettant d'envisager une extension future de vos activités.
Conditions : Les délais de livraison peuvent être convenus selon vos besoins spécifiques. ( 1er Semestre 2026 )
Pour toute demande d'information complémentaire ou pour organiser une visite, n'hésitez pas à nous contacter. C'est une opportunité à ne pas manquer pour établir votre activité dans un cadre de qualité à Haguenau !
100.42 m²
3 150 €
2026
Est
Nord
Oui
Contact M. JUNG
Contacter gratuitement à l'aide du formulaire ci-dessous.