Honoraires à la charge de l'acquéreur (Prix hors honoraires : 1350000 euros).
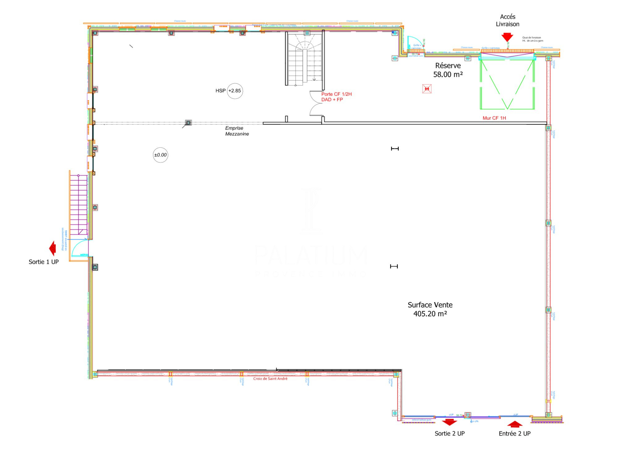
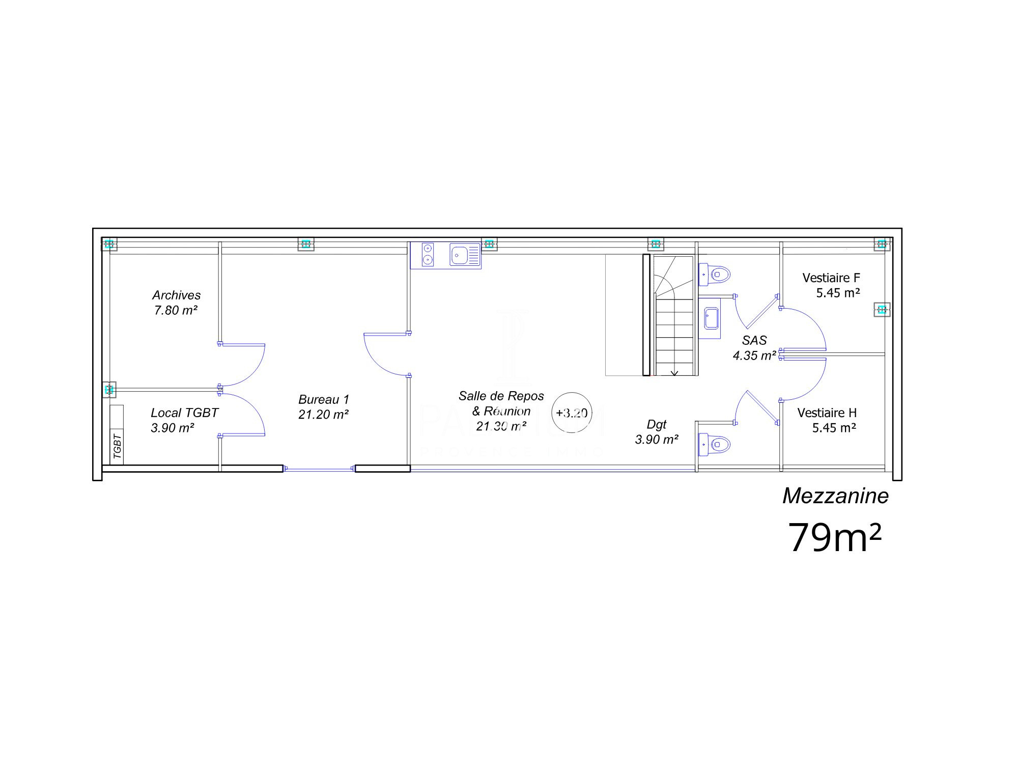
Saint-Rémy-de-Provence se trouve entre Avignon et Arles (30 mn). Véritable pépite de la région, la commune offre toutes les commodités, elle est également proche des voies de communication autoroutières, ferroviaires et aériennes. Cet ensemble regroupe sur un terrain de 1000 m², un local professionnel de 405 m² abritant : 6 bureaux, salle d'attente, accueil, parking, et à l'étage, un logement de 107 m² (3 chambres). Si vous souhaitez conjuguer vie professionnelle et vie privée, c'est le lieu idéal !
Considérée comme la capitale des Alpilles, Saint Rémy de Provence est une des pépites de la région. Entre Avignon et Arles (30 mn), la commune offre toutes les commodités. Sa proximité avec les réseaux de communication autoroutiers, ferroviaires et aériens, lui confère un attrait certain pour les touristes, comme pour les entreprises. Aéroport et gare TGV sont situés à 20 mn.
Rendu célèbre par de nombreux artistes inspirés par sa campagne environnante à l'instar de Van Gogh, le village séduit depuis toujours par la richesse de son patrimoine, la beauté de ses paysages et un ensoleillement de plus de 300 jours par an.
Au coeur d'une zone artisanale, implanté sur un terrain de 1000 m² sur lequel il est possible de bâtir une extension de 95 m², cet ensemble regroupe un local professionnel qui s'étend sur 405 m² et comporte : 6 bureaux de 27 à 30 m² avec point d'eau, , salle d'attente, accueil et parking.
A l'étage, un logement d'une surface de 107 m² propose une belle pièce à vivre avec cuisine équipée, 3 chambres de 14, 16 et 19 m², ainsi qu'une salle de bains. Une terrasse couverte de 47 m² permet de profiter de l'arrière saison.
Les menuiseries PVC comportent des ouvertures double vitrage, le chauffage est assuré par une climatisation réversible et le portail électrique est muni d'un interphone.
Si vous recherchez un cadre de vie exceptionnel, dans lequel vous allez pouvoir conjuguer vie personnelle et vie professionnelle, vous venez de le trouver !
Local d'activités
512 m²
2 637 €
Contact Promup
Contacter gratuitement à l'aide du formulaire ci-dessous.