Honoraires à la charge de l'acquéreur (Prix hors honoraires : 0 euros).
Les charges de location sont prévisionnelles mensuelles avec régularisation annuelle.
DURET IMMOBILIER ENTREPRISE A LOUER - LA ROCHE-SUR-YON SUD
LOCAUX D'ACTIVITÉS RÉNOVÉS
IDÉAL activité artisanale et commerciale ! TRES BEL EMPLACEMENT - ZA ACTI SUD
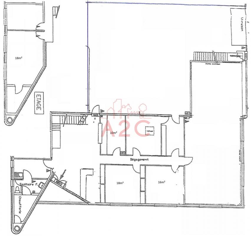
Cellule d'activités rénovés de 440 m² comprenant : - Bureaux de 250 m² : accueil, bureaux individuels, open-space, sanitaires, tisanerie - Atelier de 190 m² : mezzanine, atelier grande HSP, porte sectionnelle Surface divisible.
Ce bien est un parfait outil de travail disposé à vous accueillir, avec une belle visibilité commerciale dans une zone d'activités dynamique. Le tout sur un terrain bitumé avec parking privatifs.
Pour plus d'informations, contactez DURET L'IMMOBILIER D'ENTREPRISE ou Raphaël JAULIN, votre spécialiste en immobilier d'entreprise. Accueil téléphonique du Lundi au Vendredi de 8h30 à 17h45. Les informations sur les risques auxquels ce bien est exposé sont disponibles sur le site Géorisques : www.georisques.gouv.fr
RAJ
Honoraires de 7 800 HT à la charge du locataire. Dépôt de garantie 5 000 . DPE en cours. Les informations sur les risques auxquels ce bien est exposé sont disponibles sur le site Géorisques : georisques.gouv.fr.
Local d'activités
440 m²
7800 %
Contact Agence Duret Immobilier d'Entreprise
Contacter gratuitement à l'aide du formulaire ci-dessous.