Honoraires à la charge de l'acquéreur (Prix hors honoraires : 0 euros).
Les charges de location sont prévisionnelles mensuelles avec régularisation annuelle.
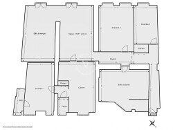
Privilèges Immobilier vous propose à la location des bureaux adaptés à un bail professionnel, parfaits pour les activités non commerciales, notamment les professions libérales (avocats, médecins, consultants, etc.). ? Caractéristiques : Situés au 2? étage d'un immeuble Composés de 7 pièces dont 3 espaces de travail fonctionnels et modulables. ? Emplacement privilégié : En plein coeur du centre-ville, dans la rue Léon Blum, reconnue pour son dynamisme et son attractivité. Offrez à votre activité un cadre de travail idéal et une adresse prestigieuse. Contactez-nous dès maintenant pour organiser une visite?!. Les informations sur les risques auxquels ce bien est exposé sont disponibles sur le site Géorisques : http://www.georisques.gouv.fr