Location commerce entrepôt 190 m² divisible Roquevaire (13360)
Roquevaire 13360
0
Honoraires à la charge de l'acquéreur (Prix hors honoraires : 0 euros).
Les charges de location sont prévisionnelles mensuelles avec régularisation annuelle.
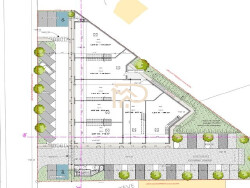
ImminoPro, Conseil en Immobilier d'entreprise, vous propose à la location des locaux professionnels attractifs et idéalement situés, d'une surface de 140 à 190 m² , Zone d'activité de Saint-Estève à Roquevaire (13360).
- Possibilité de regrouper plusieurs lot - surface RDC + mezzanine d'environ 30 m² - accessibilité et visibilité commerciale - HSP : 6,5 mètres - Ouverture vitrée + porte sectionnelle - accès gros porteurs - Proximité Métropole Aix/Marseille - Aubagne - livrés bruts et hors aménagements intérieurs au 1er trimestre 2026
Projet à découvrir ensemble rapidement (reste 6 lots disponibles)
ImminoPro installe votre entreprise dans les Bouches du Rhône et le Var
Dépôt de garantie 9 498 . DPE vierge. Les informations sur les risques auxquels ce bien est exposé sont disponibles sur le site Géorisques : georisques.gouv.fr.
Local d'activités
190 m²
2025
37
Contact NICOLAS CONSEIL STRATEGIE
Contacter gratuitement à l'aide du formulaire ci-dessous.