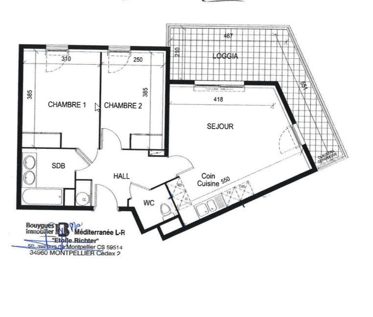
Résidence le Quartier Latin située au pied de la facultée de lettres. l'agence frances immobilier propose cet appartement de type F3 d'une superficie de 65.74 m² environ situé en 3ème étage. ce logement comprend une entrée avec placards, séjour, coin cuisine aménagée, 2 chambres, salle de bain et wc séparé. parking extérieur et cave. disponible le 18-12-2025 Loyer: 910.00 Dont provision sur charges : 180 par mois (régularisation annuelle) Honoraires charge locataire : 730 TTC dont Frais de visite / dossier / rédaction du bail 531,01 TTC dont honoraires état des lieux : 198,99 TTC Dépôt de garantie : 730 Montant estimé des dépenses annuelles d'énergie pour un usage standard : entre 1 170 et 1 640 par an. Prix moyens des énergies indexés sur les années 2021 2022 2023 (abonnement compris).
66.33 m²
3
2
1
1
3 sur 4
20251218
180 € / mois
Gaz
1
Consommations énergétiques
Logement économe
207
Logement énergivore (kWhEP/m2/an)
Émissions de gaz à effet de serre
Faible émission de GES
33
Forte émission de GES(kgeqCO2/m2/an)
Contact FRANCES IMMOBILIER
Contacter gratuitement à l'aide du formulaire ci-dessous.