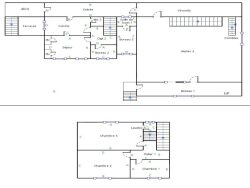
La Première Agence vous invite à découvrir un tènement immobilier constitué de : Locaux - ateliers d'une surface total de 520 m² environ avec stationnement + Maison d'habitation de 105 m² à réhabiliter + Terrain constructible de 650 m²
Les atouts: - Hyper centre -De nombreuses possibilités d'aménagement - Grands espaces pour du stockage - Terrain plat - Stationnement
Idéal pour artisan, professionnel, restaurateur, professionnel de santé
N'hésitez pas à nous contacter pour plus de renseignements : Pierre TARDY au 06 89 87 37 25 La première agence c'est tout une équipe pour vous accompagner dans vos projets !!!
Honoraires à la charge du vendeur. Non soumis au DPE. Les informations sur les risques auxquels ce bien est exposé sont disponibles sur le site Géorisques : georisques.gouv.fr.
Votre conseiller La première Agence : Pierre Tardy Agent commercial (Entreprise individuelle) RSAC 879 684 504
620 m²
597 €
800 m²
1900
Contact La première Agence
Contacter gratuitement à l'aide du formulaire ci-dessous.