75013 - PARIS - GARE - LOCAL COMMERCIAL - 750.0m2 - 2 NIVEAUX
efficity, l'agence qui estime votre bien en ligne, vous propose
Situé au c?ur du quartier dynamique de la Gare à Paris, ce local commercial lumineux de 750.0m2 représente une opportunité rare sur le marché.
Le local est au sein d'un nouveau en pleine mutation en recherche de commerce
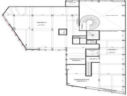
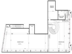
Le local est constitué de 2 niveaux avec une escalier monumental. Il est traversant avec de grande baies vitrées et une hauteur sous plafond de plus de 5m
À proximité immédiate des transports en commun, des commerces et des bureaux, ce local commercial bénéficie d'un flux constant de passage et de clients potentiels.
Cette opportunité à saisir saura séduire les entrepreneurs en quête d'un emplacement stratégique au c?ur de l'activité économique parisienne. Ne manquez pas cette chance unique de concrétiser votre projet professionnel dans un environnement dynamique et en plein essor.
Contactez-nous dès maintenant pour organiser une visite et découvrir tout le potentiel de ce local commercial idéalement situé.
Les informations sur les risques auxquels ce bien est exposé sont disponibles sur le site Georisque : georisques. gouv. fr
Benjamin Sese - EI - est Agent Commercial mandataire en immobilier, immatriculé au Registre Spécial des Agents Commerciaux du Tribunal de Commerce de Nanterre sous le n°835184003.
Siège social du mandant : effiCity, 48 avenue de Villiers - 75017 PARIS - Société par Actions Simplifiée, société au capital de 132 373,05 euros, immatriculée au RCS Paris 497 617 746 et titulaire de la Carte professionnelle CPI 7501 2015 000 002 025 - CCI Paris IDF - Caisse de Garantie : GALIAN Assurances 89 rue de la Boétie 75008 Paris
750 m²
7 527 €
3
Oui
Consommations énergétiques
Logement économe
300
Logement énergivore (kWhEP/m2/an)
Émissions de gaz à effet de serre
Faible émission de GES
50
Forte émission de GES(kgeqCO2/m2/an)
Contact M. Benjamin Sese
Contacter gratuitement à l'aide du formulaire ci-dessous.