62330 ? ISBERGUES ? ESPACE PROFESSIONNEL INDÉPENDANT? MAISON RENOVÉE 1935 ? 255 m² ? 4 CHAMBRES ? GARAGE DOUBLE ? CENTRE DU VILLAGE, QUARTIER RÉSIDENTIEL
effiCity, l'agence qui estime votre bien en ligne, et Patrick Vigneau, vous proposent en EXCLUSIVITÉ, ce local commercial et cette maison de caractère de 1935, entièrement rénovée, située au c?ur d'Isbergues, face à la place du village, dans un environnement calme et résidentiel.
UN ESPACE PROFESSIONNEL CLÉ EN MAIN ? IDÉAL POUR PROFESSION LIBÉRALE
Au rez-de-chaussée, un ancien cabinet dentaire d'environ 100 m² parfaitement entretenu et immédiatement exploitable.
L'aménagement existant se prête à de nombreuses activités indépendantes : médecin, dentiste, kinésithérapeute, infirmier(ère), ostéopathe, avocat, juriste, expert-comptable, architecte?
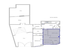
L'espace comprend :
?Deux grandes salles de consultation,
?Un laboratoire,
?Une salle d'attente,
?Un bureau ou salle complémentaire (pouvant faire office de salle de sport, de repos ou d'archives),
?Un accès direct vers une cour et une grande terrasse à l'arrière.
Le matériel dentaire existant (fauteuils, équipements de base) peut être repris et remis en service, constituant une opportunité idéale pour un jeune praticien ou un professionnel souhaitant s'installer rapidement à moindre coût.
Grâce à son entrée totalement indépendante, cet espace permet de recevoir sa clientèle tout en préservant la vie privée de l'habitation située à l'étage.
L'HABITATION ? CONFORT ET LUMINOSITÉ
L'accès à la partie habitation se fait par une seconde entrée séparée.
L'étage offre un vaste séjour traversant de 57 m², une cuisine équipée et séparée, ainsi que quatre belles chambres, dont une grande chambre aménagée sous combles.
Une salle de bain et une salle d'eau complètent l'ensemble.
L'ensemble de la maison a été soigneusement rénové : électricité, menuiseries, isolation, sols et peintures.
On y retrouve le charme de l'ancien allié au confort moderne.
LES ATOUTS SUPPLÉMENTAIRES
?Garage double,
?Cour privative pouvant accueillir deux véhicules supplémentaires,
?Grande terrasse sans vis-à-vis,
?Stationnement facile sur la place en face,
?Maison d'angle avec excellente visibilité et deux accès distincts.
POUR QUI ?
Ce bien s'adresse avant tout à :
?Un professionnel libéral souhaitant regrouper habitation et activité,
?Un jeune praticien cherchant un local prêt à l'emploi,
?Une famille désireuse d'un grand logement avec un potentiel professionnel ou locatif.
Les informations sur les risques auxquels ce bien est exposé sont disponibles sur le site Georisque : georisques. gouv. fr
Patrick Vigneau - EI - est Agent Commercial mandataire en immobilier, immatriculé au Registre Spécial des Agents Commerciaux du Tribunal de Commerce de Lille métropole sous le n°843665183.
Siège social du mandant : effiCity, 48 avenue de Villiers - 75017 PARIS - Société par Actions Simplifiée, société au capital de 132 373,05 euros, immatriculée au RCS Paris 497 617 746 et titulaire de la Carte professionnelle CPI 7501 2015 000 002 025 - CCI Paris IDF - Caisse de Garantie : GALIAN Assurances 89 rue de la Boétie 75008 Paris
255 m²
1 185 €
9
1935
Oui
Consommations énergétiques
Logement économe
218
Logement énergivore (kWhEP/m2/an)
Émissions de gaz à effet de serre
Faible émission de GES
30
Forte émission de GES(kgeqCO2/m2/an)
Contact M. Patrick Vigneau
Contacter gratuitement à l'aide du formulaire ci-dessous.