06610 - LA GAUDE - NERTIERES - LOCAL COMMERCIAL - 145 M2 - 5/7 PIÈCES - ETAT REMARQUABLE - PARKING EXTERIEUR - REFAIT À NEUF - ASCENSEUR
efficity, l'agence qui estime votre bien en ligne et Anthony Rouas vous proposent :
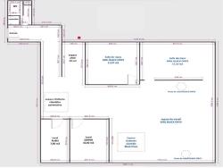
Local commercial d'une surface de 145 m2 situé dans le quartier Nertières de La Gaude. Cet espace lumineux et spacieux offre un énorme potentiel pour un investissement. Précédemment exploité en centre de beauté et sous loué en multi baux pour une rentabilité de 3200€ par mois.
Idéal pour centre médical, dentaire, ou d'analyse, mais également de centre de beauté, de massage, salon de coiffure...
Entièrement rénové en 2023, l'état général de ce bien est remarquable, offrant ainsi un cadre de travail optimal. Doté de 40 places de stationnement extérieur, l'accessibilité est un véritable atout pour accueillir facilement clients et collaborateurs.
Au 2 étages et desservi par un ascenseur, ce local commercial offre un agencement flexible et fonctionnel pour répondre à tous vos besoins professionnels. Les espace, lumineux et bien aménagés et équipés de clim reversibles, peuvent donc accueillir une ou plusieurs activités ou simplement être divisés en bureaux.
N'hésitez plus et venez découvrir ce local commercial d'exception à La Gaude. Pour plus d'informations ou pour organiser une visite, contactez-nous dès maintenant.
Visite virtuelle disponible sur demande.
Les informations sur les risques auxquels ce bien est exposé sont disponibles sur le site Georisque : georisques. gouv. fr
Anthony Rouas - EI - est Agent Commercial mandataire en immobilier, immatriculé au Registre Spécial des Agents Commerciaux du Tribunal de Commerce de Paris 4e Arrondissement sous le n°493646046.
Siège social du mandant : effiCity, 48 avenue de Villiers - 75017 PARIS - Société par Actions Simplifiée, société au capital de 132 373,05 euros, immatriculée au RCS Paris 497 617 746 et titulaire de la Carte professionnelle CPI 7501 2015 000 002 025 - CCI Paris IDF - Caisse de Garantie : GALIAN Assurances 89 rue de la Boétie 75008 Paris
145 m²
3 034 €
Oui
Contact M. Anthony Rouas
Contacter gratuitement à l'aide du formulaire ci-dessous.