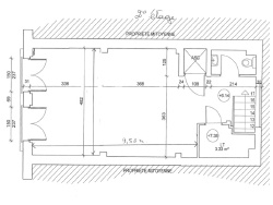
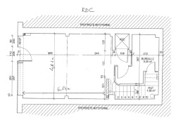
A VENDRE , ALBI, centre ville, cet immeuble d'une surface totale de 135 m2 se décompose en 3 plateaux de 45 m2 environ équipés d'un ascenseur et d'un sanitaire par niveau et de climatisations réversibles. L'ensemble nécessite des travaux de rafarichisement mais présente l'avantage d'un emplacement central proche des transports et dun parking public ainsi que d'un équipement rare d'un ascenseur ce qui assure un accueil de personne à mobilité réduite ou handicapé. Les locaux bénéficient d'une belle luminosité et sont libres de toute occupation. « Les informations sur les risques auxquels ce bien est exposé sont disponibles sur le site Géorisques : www.georisques.gouv.fr»
135 m²
1 099 €
1960
Oui
Oui
Oui
Contact Christine Sirgue Immobilier
Contacter gratuitement à l'aide du formulaire ci-dessous.