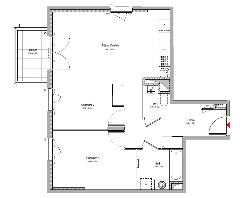
Situé à Villeurbanne, à seulement dix minutes à pied du quartier emblématique des Gratte-Ciel et à proximité immédiate de toutes les commodités, et du futur tram T6 (février 2026), ce loft de caractère développe une surface de 97m² Carrez. Issu de la réhabilitation d'un ancien local, ce bien singulier séduit par ses volumes généreux et son architecture intérieure soignée. L'entrée s'ouvre sur une cuisine aménagée aux lignes contemporaines qui bénéficie d'une belle hauteur sous plafond. Elle fait face à une vaste pièce de vie baignée de lumière où le séjour, organisé autour d'un espace salon et d'un coin télévision, prolonge cette verticalité magistrale, véritable signature de ce lieu. Au centre, un espace bureau a été intelligemment intégré sous la mezzanine pour optimiser les volumes. L'ambiance générale, marquée par une décoration industrielle et la présence de nombreuses verrières d'atelier, affirme l'esprit loft de l'habitation. De plain-pied, une suite parentale disposant de sa propre salle d'eau complète ce premier niveau. Un escalier mène ensuite à la mezzanine qui surplombe l'espace de réception. Ce niveau supérieur dessert l'espace nuit des enfants, composé de deux chambres et d'une salle de bain indépendante. Accessible directement depuis la cuisine, la terrasse sur cour de 20m² se révèle être une véritable extension de l'espace de vie. Habillé d'un chaleureux platelage en bois et protégé par une toile d'ombrage, cet espace permet de profiter de déjeuners en plein air et des moments de partage en famille ou entre amis. L'alliance réussie entre le cachet de l'ancien, la rénovation de qualité et un véritable esprit maison confère à ce bien une identité unique sur le marché. Deux caves viennent parfaire l'ensemble. Bien soumis au statut de la copropriété : 21 Charges annuelles : 1720 euros CLASSE ENERGIE : D / CLASSE CLIMAT : A Montant moyen estimé des dépenses annuelles d'énergie pour un usage standard, établi à partir des prix de l'énergie de l'année 2021, 2022, 2023 : entre 1120 euros et 1560 euros Contact: Guillaume - 06 67 69 73 00 Copropriété de 21 lots - dont 21 lots habitation. (Pas de procédure en cours). Charges annuelles : 1720 euros. Guillaume Brun (EI) Agent Commercial - Numéro RSAC : 797 600 988 - Lyon.