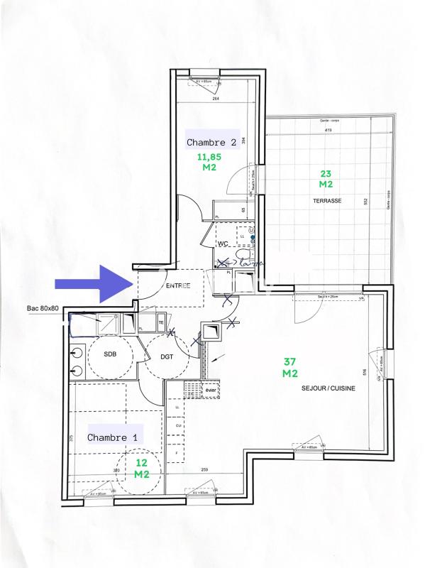
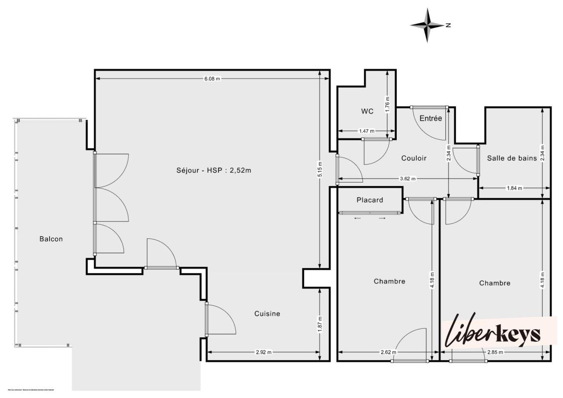
Architecture d'un ancien moulin entièrement rénové, situé dans une impasse au calme au coeur du quartier Chutes-Lavie, cet appartement développe 107 m2 et offre un véritable esprit loft grâce à ses volumes exceptionnels, ses poutres apparentes et sa circulation fluide. La pièce à vivre, d'une superficie rare de 70 m2, accueille un vaste salon, une salle à manger et une cuisine ouverte, créant un espace lumineux et convivial qui s'adapte à tous les modes de vie. Les doubles fenêtres, la hauteur sous plafond et le parquet à baton rompu renforcent la sensation d'espace et apportent une atmosphère élégante et chaleureuse. L'espace nuit se compose de deux chambres, chacune bénéficiant d'un calme absolu et d'un parquet identique au séjour pour une parfaite continuité esthétique.La première chambre profite d'une belle luminosité et d'un mur aux tons doux créant une ambiance apaisante. La deuxième chambre propose de grands rangements intégrés et une configuration simple laissant place à un aménagement sur mesure. La salle d'eau, spacieuse et contemporaine, offre une grande douche, une double vasque et un ensemble de prestations soignées. Un espace buanderie discret et pratique y est intégré. L'ensemble de l'appartement présente des prestations haut de gamme, un agencement réfléchi et des finitions soignées qui soulignent la qualité du lieu. Les charges de copropriété restent très faibles, renforçant l'attrait du bien pour une résidence principale comme pour un investissement. Ce trois-pièces au style loft, situé dans un ancien moulin réhabilité, offre un cadre de vie unique, calme et lumineux, au sein d'un quartier dynamique et recherché. Prix de vente : 318000 EUR Honoraires à la charge du vendeur. Taxes foncières : 1073 EUR / an. Charges de copropriété : 70 EUR/ mois. DPE : 103 kWh ep/m2.an (Classe C) GES : 24 kg CO2/m2.an (Classe D) Estimation des coûts annuels d'énergie : entre 754 EUR et 1058 EUR (référence 2023). Nombre de lots 10, Numéro de lot 18. Contactez Cyril ARSONNEAU au 06 26 95 17 65 - cyril.arsonneau@pm-immobilier.fr Les informations sur les risques auxquels ce bien est exposé sont disponibles sur le site : www.georisques.gouv.fr
Loft
107 m²
2 972 €
73 m²
3
2
1
1
2 sur 3
60 € / mois
1960
Sud
Oui (10 lots)
Consommations énergétiques
Logement économe
103
Logement énergivore (kWhEP/m2/an)
Émissions de gaz à effet de serre
Faible émission de GES
24
Forte émission de GES(kgeqCO2/m2/an)
Contact ARSONNEAU CYRIL
Contacter gratuitement à l'aide du formulaire ci-dessous.