Longère rénovée à neuf, à deux pas de la gare de Betton
Betton 35830
0
En exclusivité ? Longère entièrement rénovée en 2025, jamais occupée, sur une parcelle de 358 m² à Betton. Prix : 420 000 €.
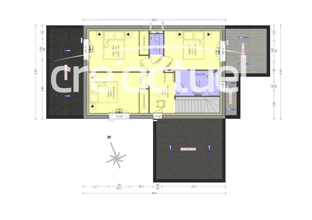
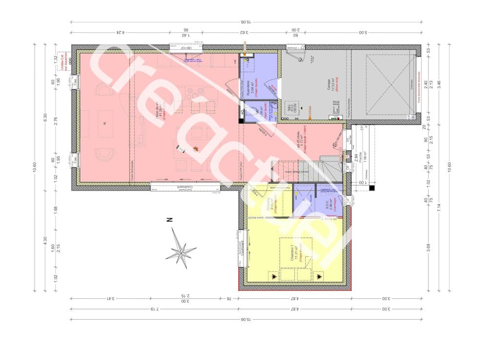
Cette longère offre deux logements indépendants de 75 m² et 22 m², chacun disposant d'une entrée privative, d'un espace extérieur et d'une place de parking. La maison principale s'ouvre sur une entrée qui mène à une grande pièce de vie lumineuse avec cuisine équipée ouverte sur le séjour. Elle bénéficie d'une chambre parentale en rez-de-chaussée avec salle d'eau privative. À l'étage, deux chambres supplémentaires et une salle de bain avec WC complètent l'ensemble.
Le second logement, idéal pour la location étudiante ou un usage locatif de courte durée, comprend une pièce de vie au rez-de-chaussée avec kitchenette et une chambre à l'étage avec salle d'eau.
Un local technique assez grand pour accueillir vélos, stockage et poubelles est également intégré au bâtiment.
Cet ensemble permet diverses configurations : coliving, location étudiante, location saisonnière (Airbnb) ou hébergement pour adolescents et invités, tout en offrant l'indépendance des occupants. Situation pratique : gare de Betton à environ 5 minutes à pied, accès routiers rapides vers Rennes, lignes de bus à proximité. Écoles, commerces et espaces verts accessibles en quelques minutes à pied, dans un cadre calme et fonctionnel.
Les deux logements sont immédiatement habitables. Visites uniquement sur rendez?vous.
Cette annonce référence 305897 vous est présentée par votre agent commercial BSK Immobilier CLAIRE KOUDOGBO (EI) immatriculé au RSAC de RENNES (35000) sous le numéro 94883869300018.
Prix du bien : 420 000,00 €
Les honoraires d'agence sont à la charge du vendeur.
A propos des performances énergétiques :
Date de réalisation du diagnostic énergétique : 16/09/2025
Score DPE : 221 kWhEP/m²/an
Score GES : 6 kgepCO2/m²/an
Montant estimé des dépenses annuelles d'énergie pour un usage standard : entre 440.00 € et 670.00 € par an. Prix moyens des énergies indexés sur l'année 2023 (abonnements compris).
Les informations sur les risques auxquels ce bien est exposé sont disponibles sur le site Géorisques : www.georisques.gouv.fr
97 m²
4 330 €
5
1900
Consommations énergétiques
Logement économe
221
Logement énergivore (kWhEP/m2/an)
Émissions de gaz à effet de serre
Faible émission de GES
6
Forte émission de GES(kgeqCO2/m2/an)
Contact CLAIRE KOUDOGBO
Contacter gratuitement à l'aide du formulaire ci-dessous.