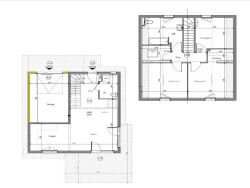
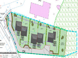
Projet de construction d'une maison individuelle d'environ 90 m² au sein d'un lotissement de 5 lots situé à 3 minutes du pont de Brogny. Le plain-pied se compose de la pièce principale, avec accès terrasse et une chambre disposant de sa salle d'eau ; l'étage est dédié au coin nuit avec 3 chambres et salle de bains. un garage attenant complète ce bien et l'ensemble est implanté sur une parcelle de 490 m². Thierry DUCRET (EI) Agent Commercial - Numéro RSAC : 333 042 604 - .