Pôle multisectoriel inscrit dans une dynamique d'avenir, PARK LIFE a été pensé comme un parc d'activité mêlant, sports, loisirs, services, activités tertiaires et de santé. Partenaire des collectivités, le groupe LIFE IMMOBILIER ambitionne avec ce projet d'oeuvrer auprès du département de la Haute-Loire pour accompagner le développement territorial de Monistrol-sur-Loire et des communes environnantes. Cette polarité viendra étendre le rayonnement et l'attractivité d'une commune résolument tournée vers l'avenir. Grâce à son architecture contemporaine parfaitement inscrite dans le paysage, remarquable par le mariage de l'acier et du bois, et ses performances environnementales exemplaires PARK LIFE concilie avec brio usages et enjeux bioclimatiques. Le dessein architectural raisonne côté extérieur sur la conception d'un volet paysager soigné qui dialogue avec son environnement. Corridors végétaux et valorisation du grand paysage, tout concourt à préserver l'harmonie des lieux. Son parc paysager composé d'essences locales, ses bancs où il fait bon se prélasser à la pause de midi ou entre 2 séances de sport, avec une vue imprenable sur les grandes prairies et les vestiges du Château de Rochebaron, le tout traversé du Nord au Sud par un mail dédié aux modes de déplacements doux, PARK LIFE célèbre la vie au grand air.
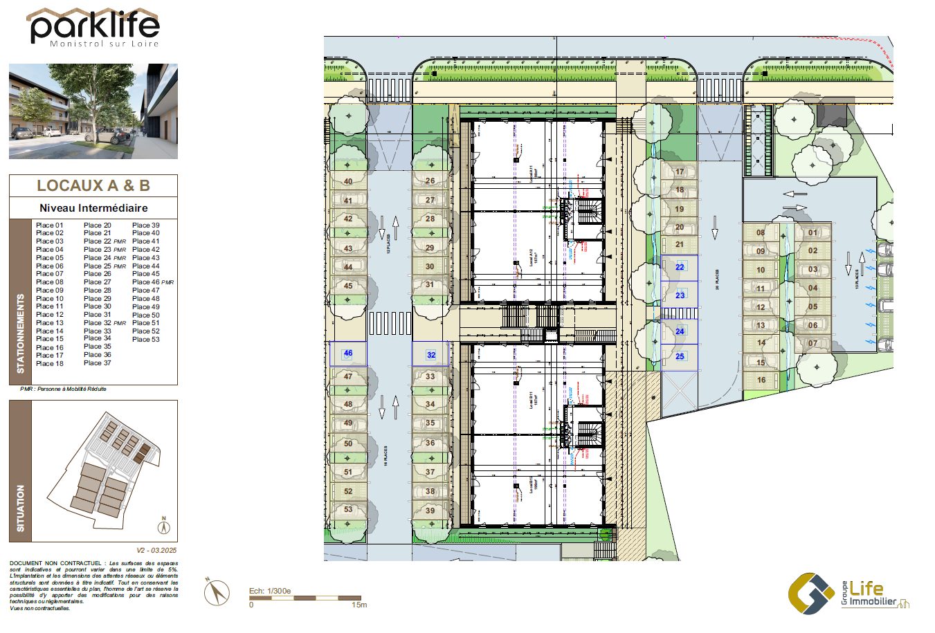
Honoraires à la charge du vendeur. Dans une copropriété de 51 lots. Aucune procédure n'est en cours. Non soumis au DPE. Les informations sur les risques auxquels ce bien est exposé sont disponibles sur le site Géorisques : georisques.gouv.fr.
Votre conseiller Cabinet Mérieux : Conseil en immobilier pro - Vincent Geoffroy. Documents et photos non contractuels susceptibles d'évolutions au fil de la commercialisation.