Honoraires à la charge de l'acquéreur (Prix hors honoraires : 95130 euros).
LOTISSEMENT - À ZILLISHEIM
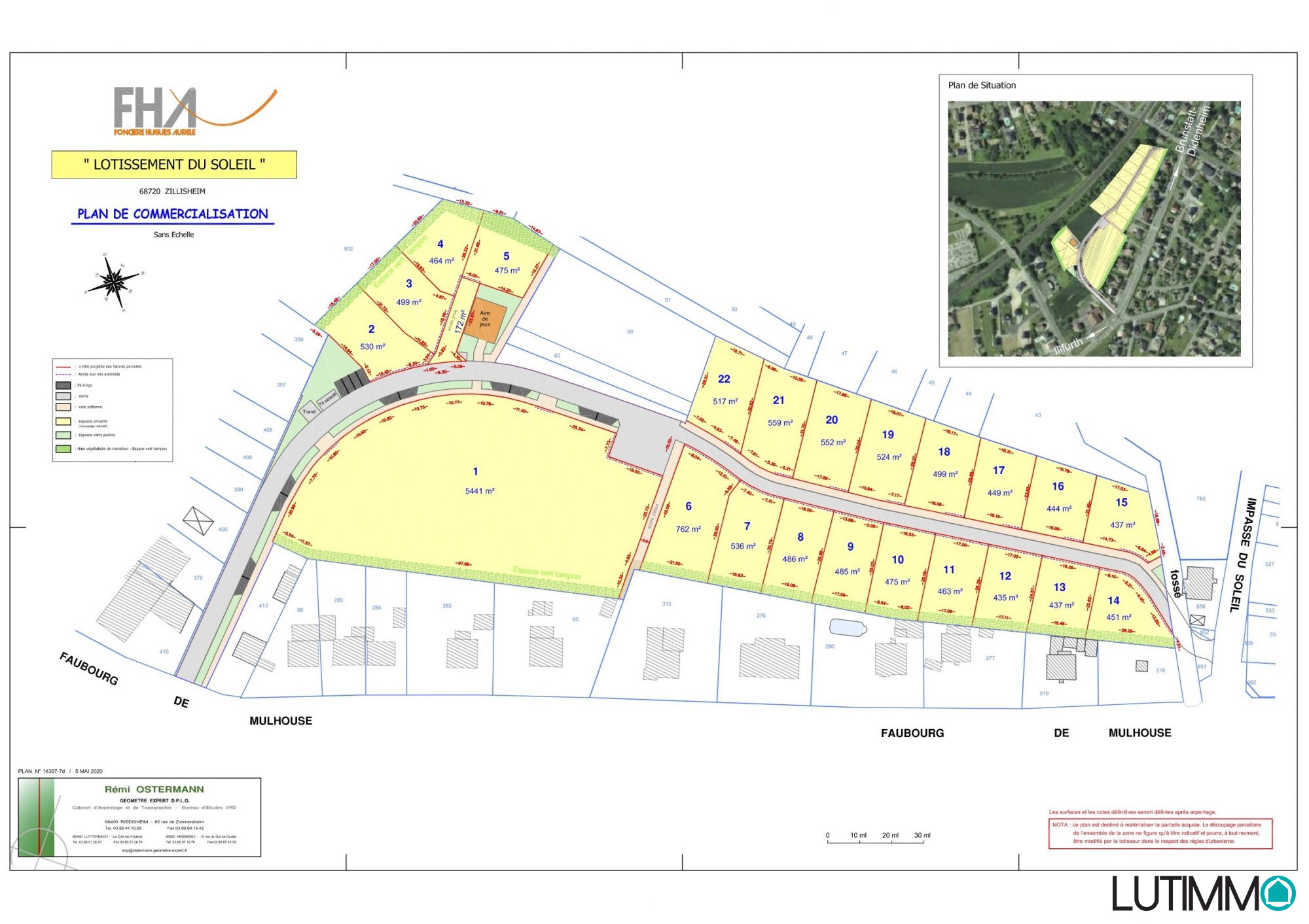
'Le Lotissement du Soleil', à la sortie de la commune, à proximité de Mulhouse. Petite commune dynamique proche des axes routiers.
Zillisheim dispose de services éducatifs comme les écoles, le périscolaire et le collège, d'associations sportives, de commerces et de transports publics.
Le lotissement vous propose un cadre de vie idéal pour construire votre maison individuelle !
Dans un nouveau quartier calme et résidentiel, découvrez ce terrain à bâtir, libre de constructeur et d'architecture de 455m². Prix de vente : 98 730 TTC Lot numéro : A
Contactez nous pour plus de renseignements au 03.89.62.78.68 - contact@lutimmo.fr - LUTIMMO Agence immobilière à Sausheim (58 rue de la Hardt) - Retrouvez l'ensemble de nos biens et projets neufs en vente sur www.lutimmo.fr
Honoraires inclus de 3.78% à la charge de l'acquéreur. Prix hors honoraires 95 130 . Les informations sur les risques auxquels ce bien est exposé sont disponibles sur le site Géorisques : georisques.gouv.fr.
Retrouvez l'annonce de l'agence immobilière LUTIMMO sur : https://www.lutimmo.fr/ref/VT699
453 m²
218 €
453 m²
3.78 %
Contact Lutimmo
Contacter gratuitement à l'aide du formulaire ci-dessous.