LYON 6 QUARTIER MARECHAL LYAUTEY MURS COMMERCIAUX ET FONDS D
Lyon 69006
0
EXCLUSIVITE Idéalement situé au coeur du très recherché quartier Maréchal Lyautey, dans le prestigieux 6e arrondissement de Lyon, ce local commercial de 105 m2 utiles (82 m2 Carrez) se trouve en rez-de-chaussée d'un magnifique immeuble ancien de standing, avec vitrine sur rue offrant une visibilité optimale. Un bien rare dans un secteur très prisé mêlant dynamisme et accessibilité. DESCRIPTION DU BIEN :
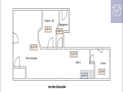
Rez-de-chaussée :
Une pièce principale de 31 m2 avec bar intégré, Un salon annexe de 8 m2, Une cuisine aménagée de 8 m2, Toilettes séparées.
Mezzanine :
Un espace détente de 10 m2, Un bureau fermé de 11 m2, idéal pour de la gestion ou de l'accueil.
Souplex communicant :
Un salon de 19 m2, propice à une activité complémentaire ou privative, Une cave de 10 m2, pratique pour le stockage.
Accès privatif supplémentaire depuis l'allée de l'immeuble climatisation installée Licence IV en vigueur (du lundi au dimanche) UN EMPLACEMENT STRATÉGIQUE :
À quelques pas du métro Ligne A Foch, Proche de la Presqu'île via le Pont Morand, Nombreuses lignes de bus à proximité, Quartier vivant, mixte résidentiel et tertiaire, générateur de flux constants.
ACTIVITÉ EN COURS & POTENTIEL :
Activité actuelle : bar à hôtesses / bar à champagne. Fonds de commerce en option au prix de 135.000 EUR (non inclus dans le prix des murs). Exploitation actuelle du lundi au vendredi uniquement : potentiel de chiffre d'affaires significatif avec ouverture le week-end.
Prix de vente des murs : 435.000 EUR Prix du fonds de commerce (en sus) : 135.000 EUR Pour visiter et vous accompagner dans votre projet, contactez Christophe AVON, directeur d'agence au 06.82.16.24.75. Agence Homicca www.homicca.fr Les informations sur les risques auxquels est exposé ce bien sont disponibles sur le site Géorisques : www.georisques.gouv.fr
105 m²
3 952 €
1
1890
Oui
Oui
Oui
Oui
Contact AVON Christophe
Contacter gratuitement à l'aide du formulaire ci-dessous.