LYON 6 QUARTIER MARECHAL LYAUTEY MURS COMMERCIAUX ET FONDS D
Lyon 69006
0
Honoraires à la charge du vendeur.
EXCLUSIVITE Au coeur du très prisé 6ème arrondissement de Lyon, à deux pas de la Place Maréchal Lyautey, dans un immeuble ancien de standing, découvrez en exclusivité ces murs commerciaux de 105 m2 utiles (82 m2 Carrez) bénéficiant d'une excellente visibilité sur rue grâce à une belle vitrine. Une configuration idéale sur plusieurs niveaux :
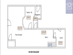
Rez-de-chaussée :
Une pièce principale de 31 m2 avec un bar, Un salon annexe de 8 m2, Une cuisine de 8 m2, Toilettes séparées.
Mezzanine :
Un espace salon de 10 m2, Un bureau fermé de 11 m2.
Souplex communiquant :
Un salon de 19 m2, Une cave aménageable de 10 m2.
Ce bien dispose d'une entrée directe par l'immeuble et d'un système de climatisation réversible. Licence IV en vigueur, autorisée du lundi au dimanche. Informations complémentaires :
Activité actuelle : bar à hôtesses / bar à champagne. Fonds de commerce inclus dans le prix. Exploitation actuelle du lundi au vendredi uniquement : un potentiel de développement important en étendant l'activité le week-end. Proximité immédiate des transports : Métro Ligne A - Foch, bus, Presqu'île via le Pont Morand.
La licence IV est incluse, tout comme le matériel d'exploitation en excellent état. L'activité est saine, avec un chiffre d'affaires régulier et une clientèle fidèle, constituée de professionnels, d'habitués du quartier, et de touristes haut de gamme. Le lieu se prête aussi bien à des événements privés, des soirées dégustation, ou à une reconversion en bar à vins, salon de thé haut de gamme, ou cave-dégustation. Prix de vente (murs + fonds de commerce) : 550.000 EUR Pour visiter et vous accompagner dans votre projet, contactez Christophe AVON, directeur d'agence au 06.82.16.24.75. Agence Homicca www.homicca.fr Les informations sur les risques auxquels est exposé ce bien sont disponibles sur le site Géorisques : www.georisques.gouv.fr
105 m²
5 238 €
1
1890
Oui
Oui
Oui
Oui
Contact AVON Christophe
Contacter gratuitement à l'aide du formulaire ci-dessous.