LYON 7 GARIBALDI APPARTEMENT TYPE 4 EN ETAGE AVEC ASCENSEUR
Lyon 69007
0
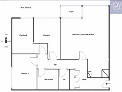
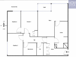
EXCLUSIVITE Lyon 7e Quartier Garibaldi Au pied du métro Ligne D, dans une résidence sécurisée avec piscine et tennis, au 2e étage sur 12 avec ascenseur, venez découvrir ce spacieux T4 de 86 m2. Il compraend un hall d'entrée avec grand placard desservant l'espace jour avec une cuisine et un séjour donnant sur un balcon à vivre. On peut ouvrir la cuisine sur le séjour et créer une belle pièce de vie de 35m2 exposée Sud (photo 1). Un dégagement dessert l'espace nuit bien distinct avec 3 chambres de 10, 12 et 13m2 exposées Est et Sud, une salle de bains, et un wc séparé. Les sols sont actuellement recouverts de lino (hors pièces d'eau), mais un beau parquet chevrons en excellent état est présent en dessous. En annexes, il y a une cave en sous-sol et une place de parking extérieure et un grand local vélos. Possibilité d'acheter une 2ème place de parking en sus. Les charges (300EUR/mois) comprennent l'eau froide, l'eau chaude, le chauffage (chauffage urbain écologique), le syndic, l'ascenseur, la piscine et le tennis et les deux gardiens. La piscine et le tennis ont été refaits récemment. La piscine est accessible de juin à septembre sous la surveillance d'un maître nageur et le tennis toute l'année sur inscription. Cet appartement est lumineux sans vis-à-vis bénéficiant d'une double exposition Sud et Est. Il bénéficie d'une climatisation réversible. Possibilité professions libérales, médecins. Emplacement recherché à proximité immédiate :
Métro Ligne D au pied de l'immeuble Parc Blandan Commerces de Saint-Louis et Monplaisir
* VISITE VIRTUELLE DISPONIBLE * Son prix est de 320.000EUR. Pour visiter et vous accompagner dans votre projet, contactez Christophe AVON, directeur d'agence au 006.82.16.24.75. Agence Homicca www.homicca.fr Les informations sur les risques auxquels ce bien est exposé sont disponibles sur le site Géorisques : www.georisques.gouv.fr
86 m²
3 721 €
4 m²
33 m²
4
3
1
1
2 sur 11
300 € / mois
1971
Sud
Est
1 (4 m²)
Oui
Oui
2
Oui
Oui
Oui
Oui
Oui (659 lots)
Consommations énergétiques
Logement économe
233
Logement énergivore (kWhEP/m2/an)
Émissions de gaz à effet de serre
Faible émission de GES
24
Forte émission de GES(kgeqCO2/m2/an)
Contact AVON Christophe
Contacter gratuitement à l'aide du formulaire ci-dessous.