Magnifique 3 pièces attique de 65.28 m2 avec splendide terrasse
Haguenau 67500
0
Honoraires à la charge du vendeur.
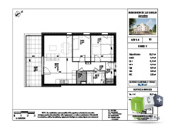
Coup de coeur assuré pour ce magnifique 3 pièces de 65.28 m2 avec une splendide terrasse orientée SUD de 16.57 m2 avec vue dégagée à deux pas du Centre Ville, des embranchements autoroutiers et de la zone commerciale du Auchan !
Laissez vous charmer par cet appartement 3 pièces avec sa splendide terrasse SUD de 16.57 m2 situé dans une future résidence haut de gamme aux lignes résolument contemporaines
Il se situe au premier étage d'un petit immeuble de trois étages de haut standing équipé d'un ascenseur.
Il comporte un espace de vie ouvert sur une cuisine américaine, deux chambres, une salle de bains (avec baignoire ou douche) et un WC indépendant.
Cet appartement possède un chauffage individuel gaz à condensation. L'intérieur sera décoré au choix du client dans la gamme proposée par les matériaux SIEHR.
Des établissements scolaires de tous niveaux sont implantés à moins de 10 minutes.
Niveau transports en commun, il y a la gare de Haguenau à deux pas !
Des restaurants, des commerces, des boulangeries, deux supermarchés, une zone commerciale sont également accessibles à proximité.
Stationnement non compris dans le prix.
Découvrez toutes les originalités de cet appartement en vente en prenant rendez-vous avec notre conseiller immobilier au 06.84.12.74.03 !
- Annonce concernant le LOT 1-4 -
Honoraires à la charge du vendeur. Dans une copropriété de 18 lots. Aucune procédure n'est en cours. DPE en cours. Les informations sur les risques auxquels ce bien est exposé sont disponibles sur le site Géorisques : georisques.gouv.fr.