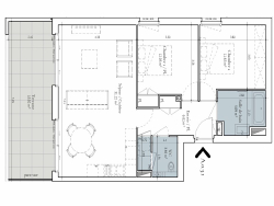
A Saint DIDIER au Mont D'OR, Les Experts du Neuf vous propose à la vente cet appartement de 70,79m² avec Terrasse dans une prochaine résidence de standing aux dernières normes comprenant : Une entrée, un séjour de 32m² avec cuisine ouverte donnant sur la terrasse de 18,02m². Dans le coin nuit, deux chambres, une salle de bain et un WC séparé. Résidence contemporaine aux très belles prestations intérieures Bâtiment basse consommation, faibles charges Visuel non contractuel Pour tout renseignement, vous pouvez me contacter, Je serai ravi d'échanger et vous aider à concrétiser votre beau projet Merci de contacter votre conseiller Grégory pour plus d'informations Copropriété de 50 lots - dont 50 lots habitation. (Pas de procédure en cours). Charges annuelles : 1200 euros.