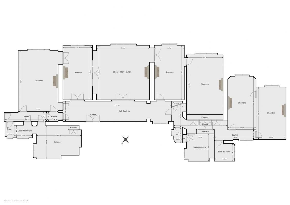
PARIS VIII Washington Meilleur conseil IMMO vous propose un magnifique appartement familial au coeur du 8eme arrondissement de Paris, à deux pas des Champs Elysée. D'une superficie de 175m², cet appartement aux prestations haut de gamme offre de beaux volumes avec 3.20 de hauteur de plafond étant à l'étage noble au 2eme avec balcon. Il se compose d'une entrée, d'un vaste double séjour avec espace salle à manger, d'une cuisine entièrement équipée, d'une buanderie, de quatre chambres, de trois salles de bains, et de quatre WC ainsi que de nombreux rangements. Une cave complète ce bien. Cet appartement a été entièrement rénové avec des prestations de qualité, vous serez séduit par son élégance, et son emplacement exceptionnel. profession Liberal possible Metro Georges V A SAISIR 07.45.04.30.10 Divers
Honoraires à la charge du vendeur. Dans une copropriété de 7 lots. Quote-part moyenne du budget prévisionnel 4 000 /an. Aucune procédure n'est en cours. Non soumis au DPE. Les informations sur les risques auxquels ce bien est exposé sont disponibles sur le site Géorisques : georisques.gouv.fr.