Magnifique appartement bourgeois face au palais universitaire
Strasbourg 67000
0
Honoraires à la charge de l'acquéreur (Prix hors honoraires : 1200000 euros).
Strasbourg - Neustadt - Place de l'Université
Encore une exclusivité Groupimmo Strasbourg !
Au 1er étage d'un immeuble bourgeois faisant face au palais universitaire et à l'église Saint Paul, magnifique appartement d'angle offrant de grands volumes avec sa surface de 243m2 et un cachet incroyable par la sublimation des prestations existantes ( parquets massifs, moulures , sous-bassements ,hauts plafonds ...)!
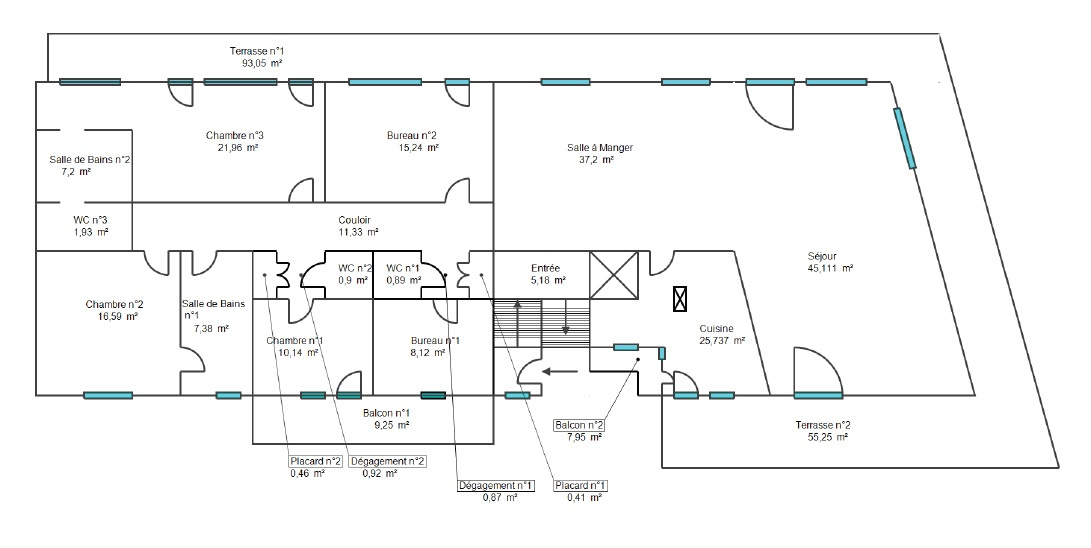
L'appartement , occupant à lui seul le pallier avec ses 7 pièces , peut se décrire ainsi:
Une entrée principale avec un couloir distribuant l'ensemble des pièces qui dessert à gauche un coin invité avec des toilettes séparées et un rangement Un vestiaire d'entrée Une quadruple pièce de vie en enfilade dont une cuisine aménagée et équipée avec son coin repas, un bureau / salle de jeu, une salle à manger et un majestueux salon avec son oriel donnant une vue panoramique sur le palais universitaire. Chacune de ces pièces peut être isolée par les portes battantes d'époque , l'ensemble offre un pièce de vie aux volumes exceptionnels baignés par la lumière : 110 m2 .
La chambre parentale avec sa salle d'eau attenante ( avec douche , vasque et WC) se trouve sur une aile de l'appartement , tandis que les trois autres chambres se trouvent sur l'autre aile de l'appartement . Ainsi ce second espace constitué de trois chambres à coucher (dont une avec balcon) ainsi que d'une salle de bains (avec baignoire ,vasque, coin buanderie balcon et grand placard) et de toilettes séparées, peut constituer un vrai coin enfant .
Appartement coup de coeur de par son emplacement , ses volumes , son agencement.
La copropriété a opéré des travaux de rénovation au cours des dernières années : ravalement de façade, toiture, colonne d'eau, remplacement de la chaudière.
Possibilité d'acquérir un stationnement dans le quartier en sus du prix de vente.
Honoraires inclus de 2.08% TTC à la charge de l'acquéreur. Prix hors honoraires 1 200 000 . Dans une copropriété de 22 lots. Quote-part moyenne du budget prévisionnel 4 529 /an. Aucune procédure n'est en cours. Classe énergie D, Classe climat D Montant moyen estimé des dépenses annuelles d'énergie pour un usage standard, établi à partir des prix de l'énergie de l'année 2022 : entre 4530.00 et 6180.00 . Les informations sur les risques auxquels ce bien est exposé sont disponibles sur le site Géorisques : georisques.gouv.fr. . www.groupimmo.pro Retrouvez l'annonce de l'agence immobilière Groupimmo Strasbourg sur : https://www.groupimmo.pro/ref/VA25636
242.15 m²
5 059 €
4 m²
7
4
2
3 (séparés)
1 sur 4
2.08 %
377.00 € / mois
1900
3 (4 m²)
Oui
Oui
Oui (22 lots)
Consommations énergétiques
Logement économe
226
Logement énergivore (kWhEP/m2/an)
Émissions de gaz à effet de serre
Faible émission de GES
45
Forte émission de GES(kgeqCO2/m2/an)
Contact Groupimmo Strasbourg Neudorf
Contacter gratuitement à l'aide du formulaire ci-dessous.