David Lescuyer vous présente ce magnifique appartement de 3 pièces avec 79,76m2 sur la commune de Givors.
Ce bien se compose d'une entrée individuelle avec un escalier pour se rendre à l'appartement au 1er et dernier étage.
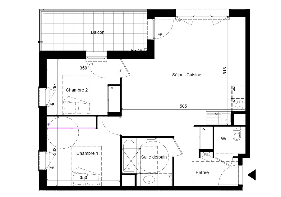
Une grande cuisine ouverte sur le séjour-salon de 45,86m2 avec une belle hauteur sous plafond et une charpente traditionnelle apparente.
- Un balcon sécurisé de 5,61m2 donnant sur le séjour.
- Une salle d'eau de 6,29m2 et WC non indépendant.
- Une première chambre de 9,29m2 et une deuxième chambre de 10,31m2
Charges de copropriété de 150 euros par an.
2 places de parking viennent compléter ce bien.
Visite vidéo disponible dans l'annonce et également sur ma chaîne Youtube ( David Lescuyer )
N'hésitez pas à me contacter pour programmer une visite.
Honoraires à la charge du vendeur. Dans une copropriété de 7 lots. Aucune procédure n'est en cours. Classe énergie D, Classe climat B Montant estimé des dépenses annuelles d'énergie pour un usage standard : entre 1432.00 et 1938.00 sur les années 2021, 2022 et 2023 (abonnements compris). Les informations sur les risques auxquels ce bien est exposé sont disponibles sur le site Géorisques : georisques.gouv.fr.