Magnifique appartement familial et de réception - 190 m², 6 pièces - Charme de l?ancien et belle copropriété - Paris 16ème
Paris 75016
0
Place Victor Hugo - Très bel appartement de 6 pièces, 3 chambres d'une surface de 190m² Carrez, idéalement situé rue Spontini, dans un bel immeuble Haussmannien de bon standing.
L'appartement, pour lequel un rafraîchissement est à prévoir est situé au 2e étage sur 6 avec ascenseur. Celui-ci étant traversant (rue / cour) avec une vue dégagée, il offre une belle luminosité et un calme indéniable.
Il séduit par son plan idéal et le charme de l'ancien ? parquet en point de Hongrie, moulures, cheminées ? ainsi que par ses beaux volumes et sa grande hauteur sous plafond.
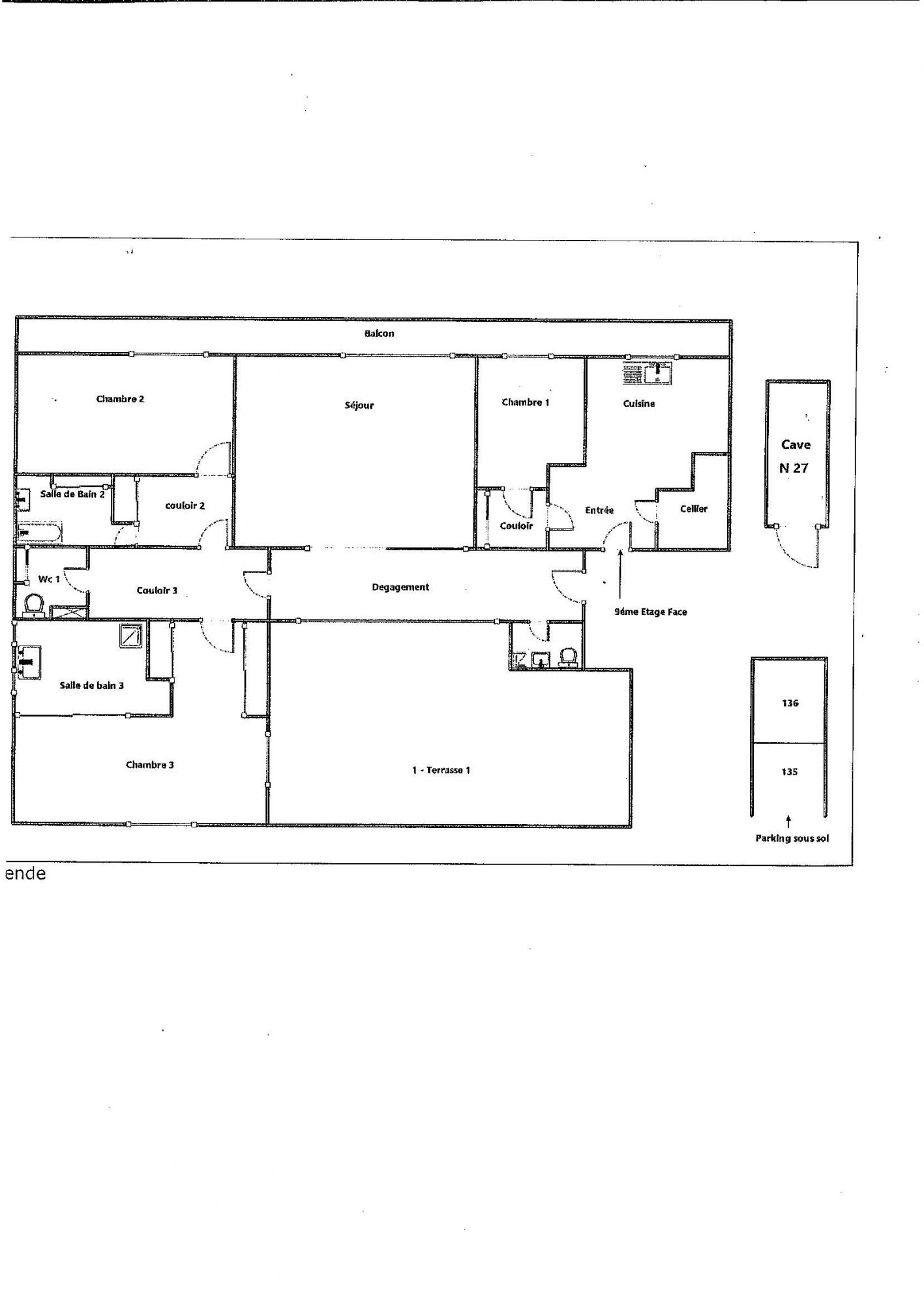
L'appartement s'ouvre sur une spacieuse galerie d'entrée menant à un double séjour de 50 m² exposé ouest, prolongé par un balcon. Il dispose également d'une salle à manger conviviale de 22 m², d'une cuisine indépendante avec escalier de service, ainsi que de trois grandes chambres au calme, donnant sur cour. Côté pièces d'eau, l'appartement offre deux salles de douches, une salle de bain et deux WC, dont un séparé.
Le bien inclut également deux caves.
Le système de chauffage est collectif et l'eau chaude est produite via ballon électrique.
La taxe foncière annuelle est de 4 400 €.
À proximité immédiate de la place Victor Hugo et de ses nombreux commerces, ce bien est bien desservi par les transports (Métro ligne 2 "Victor Hugo" , ligne 9 "Rue de la Pompe").
De nombreuses options d'écoles publiques et privées, haltes-garderies et crèches (sectorisation Janson de Sailly).
Le bien est soumis au statut de copropriété avec 15 lots. L'immeuble, en bon état, est sécurisé et dispose d'un gardien. Un local à vélos est également présent. Les charges de copropriété s'élèvent à 2 500 € par trimestre chauffage inclus.
Hosman s'efforce de réinventer l'agence immobilière en offrant un service innovant et transparent aux acheteurs et aux vendeurs. Nos frais d'agence sont de 2% au pourcentage à la charge de l'acheteur.
Si vous êtes un professionnel de l'immobilier (agent, mandataire ou chasseur immobilier), sachez que toutes les annonces Hosman sont ouvertes à la collaboration. N'hésitez pas à nous contacter pour en discuter.
190 m²
13 105 €
6
3
3
2
2
2 sur 6
Séparée
Ouest
Oui
Oui
Consommations énergétiques
Logement économe
289
Logement énergivore (kWhEP/m2/an)
Émissions de gaz à effet de serre
Faible émission de GES
42
Forte émission de GES(kgeqCO2/m2/an)
Contact Thomas Rol
Contacter gratuitement à l'aide du formulaire ci-dessous.