Honoraires à la charge de l'acquéreur (Prix hors honoraires : 208400 euros).
L'agence RB IMMO vous présente en exclusivité ce bel appartement T3 de 75 m², idéalement situé en hyper-centre de Brest,
dans le bas de la rue Jean Jaurès, à deux pas de l'Hôtel de Ville.
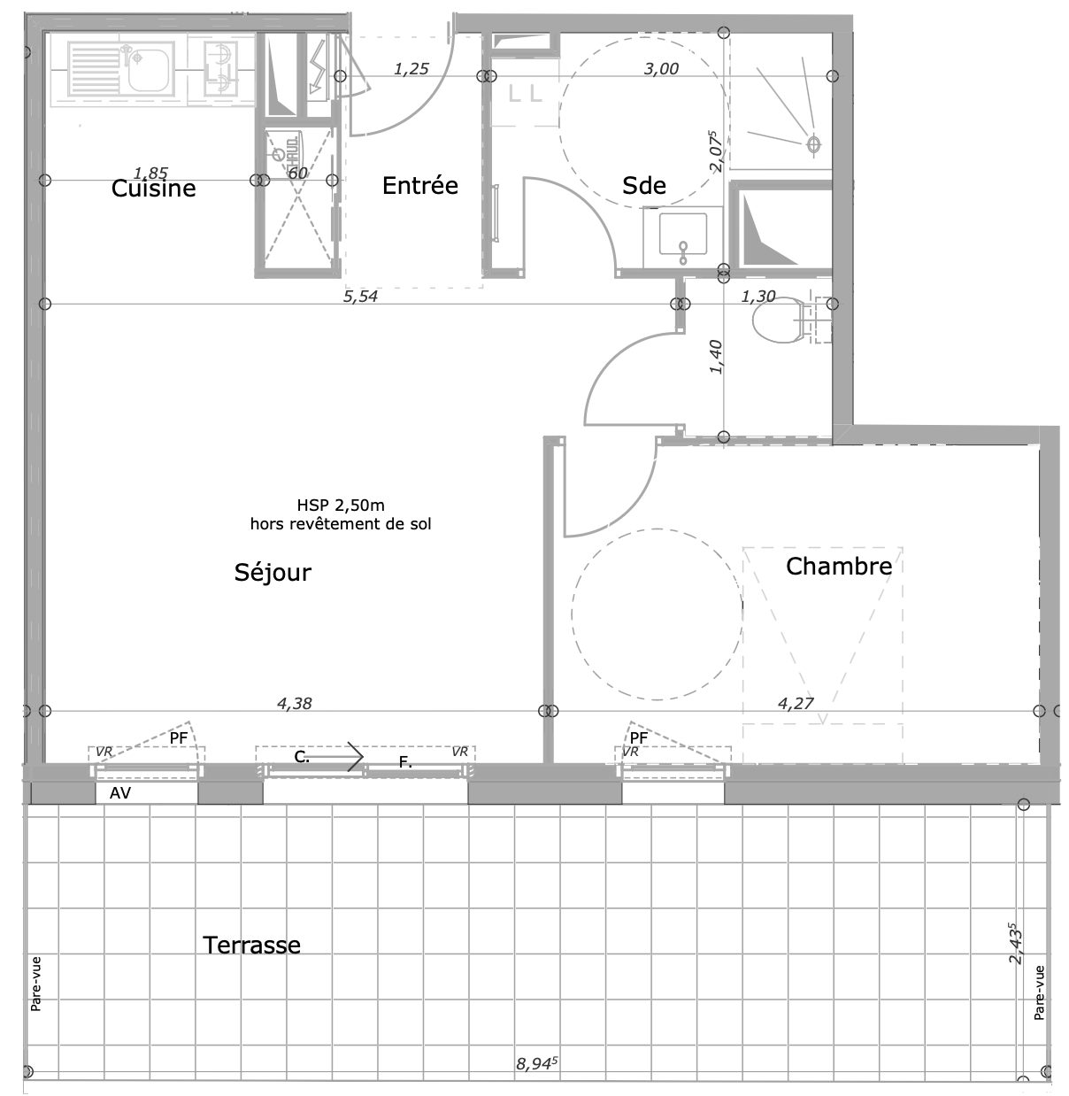
Situé au 2? étage d'une copropriété calme et bien entretenue sur dalle béton, cet appartement séduit par son cachet et sa luminosité. Il se compose d'un spacieux salon-séjour lumineux, d'une cuisine entièrement équipée et ouverte, de deux chambres avec placards intégrés, d'une belle salle d'eau et d'un WC séparé.
Vous apprécierez le parquet ancien qui confère à ce bien tout son charme, ainsi que la qualité de ses prestations. Une cave privative vient compléter ce bien.
Les atouts : Emplacement recherché en hyper-centre Copropriété calme sur dalle béton Belle luminosité Parquet ancien et cachet préservé Cuisine équipée moderne ? Localisation idéale : à proximité immédiate des commerces, transports (tramway, bus), écoles et commodités. ? Un bien rare sur le secteur, à découvrir sans tarder avec votre agence RB IMMO.
Honoraires inclus de 5.52% TTC à la charge de l'acquéreur. Prix hors honoraires 208 400 . Dans une copropriété de 7 lots. Aucune procédure n'est en cours. Classe énergie D, Classe climat B Montant moyen estimé des dépenses annuelles d'énergie pour un usage standard, établi à partir des prix de l'énergie de l'année 2022 : entre 700.00 et 950.00 . Les informations sur les risques auxquels ce bien est exposé sont disponibles sur le site Géorisques : georisques.gouv.fr.
Votre conseiller RB Immo, marque de Résidence BNB France : Directeur d'agence - Kévin BIHAN
75 m²
2 932 €
3
2
1
1 (séparé)
2 sur 3
5.52 %
20/10/2025
70.00 € / mois
1970
Ouest
Oui
Oui (7 lots)
Consommations énergétiques
Logement économe
210
Logement énergivore (kWhEP/m2/an)
Émissions de gaz à effet de serre
Faible émission de GES
6
Forte émission de GES(kgeqCO2/m2/an)
Contact RB Immo
Contacter gratuitement à l'aide du formulaire ci-dessous.