Au coeur de Bordeaux, dans un quartier calme et recherché, venez découvrir ce superbe duplex T4 de 98m2 alliant confort et modernité.
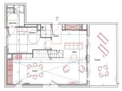
Dès l'entrée, vous serez séduit par une grande pièce de vie de 44m2 avec cuisine ouverte. Lumineuse et traversante, elle s'ouvre sur une belle terrasse de près de 24 m². Parfaite pour profiter du soleil ou prendre un repas en extérieur.
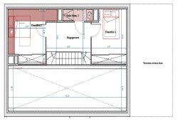
Le duplex est parfaitement agencé pour séparer les espaces jour et nuit. Au niveau principal, une chambre avec salle d'eau attenante offre un espace pratique et confortable.
À l'étage, vous trouverez deux autres chambres avec rangements, une seconde salle d'eau, ainsi qu'un dégagement pouvant servir de bureau ou de coin lecture. Chaque pièce est lumineuse et bien pensée.
Un bien rare, qui allie volume, lumière et calme, à deux pas de toutes les commodités bordelaises.
Deux places de parking couvertes et sécurisées complètent ce bien en SUS.
Honoraires à la charge du vendeur. Dans une copropriété de 135 lots. Aucune procédure n'est en cours. Non soumis au DPE. Les informations sur les risques auxquels ce bien est exposé sont disponibles sur le site Géorisques : georisques.gouv.fr.