Magnifique Duplex de 100m2 avec terrasse et jardin privatif
Nâves-Parmelan 74370
0
Honoraires à la charge du vendeur.
Découvrez le parfait compromis entre appartement et maison, où l'intérieur se prolonge naturellement vers l'extérieur grâce à de larges baies vitrées laissant entrer lumière et paysage.
Situé dans un ancien corps de ferme entièrement réhabilité avec soin par des professionnels locaux, ce bien unique allie le charme de l'ancien et les standards de construction modernes. Avec une surface utile de 108 m2, il offre un agencement optimal, une excellente performance énergétique et une vue dégagée sur les montagnes.
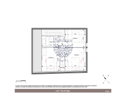
Ce bien est idéalement conçu :
-Une vaste pièce de vie traversante, baignée de lumière naturelle, avec cuisine ouverte -Accès direct à l'extérieur avec terrasse et jardin privatif arboré -Une chambre au rez-de-chaussée avec salle d'eau attenante (idéal en suite parentale ou pour télétravailler dans le calme) -Trois chambres à l'étage, toutes équipées de placards intégrés -Une salle de bain moderne avec matériaux de qualité et double vasque -Deux WC indépendants -Deux places de stationnement extérieures -Une cave privative
Prestations et finitions :
-Matériaux de qualité et durables -Isolation performante (thermique et phonique) -Chauffage : pompe à chaleur -Menuiseries bois avec double vitrage -Sols en grès cérame et parquet dans les chambres -Faibles charges grâce à une petite copropriété -Garanties de parfait achèvement, décennale et Dommage ouvrage.
------------------------!!! Frais de notaire réduit !!! -------------------------------
Commune de Naves-Parmelan : un cadre de vie privilégié à 15 minutes d'Annecy
Nichée au pied du Parmelan, Naves-Parmelan offre un environnement naturel exceptionnel, propice à la détente et aux activités de plein air. Très bien desservie, la commune dispose d'une école, de commerces de proximité et d'un accès rapide à Annecy et Genève.
Idéale pour les familles ou les actifs transfrontaliers à la recherche de calme sans compromis sur la qualité de vie, la commune séduit par son esprit village et son dynamisme.
Un bien rare qui réunit espace, prestations et sérénité. Que vous soyez en quête de votre résidence principale ou d'un investissement de qualité, ce bien coche toutes les cases.
Les informations sur les risques auxquels ce bien est exposé sont disponibles sur le site www.georisques.gouv.fr
Planifique Immobilier, Bien plus qu'une agence.
100.5 m²
5 900 €
5
4
1
2
Oui
2
Contact VASINA Thomas
Contacter gratuitement à l'aide du formulaire ci-dessous.