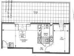
Caastelnau, arrêt de tram Sablassou au pied de l'immeuble, dans une résidence de 2010, l'agence FRANCES IMMOBILIER vous propose à la location ce magnifique appartement F2 au dernier étage bénéficiant d'une très belle terrasse de 35 m² exposée sud-ouest. Ce logement est entièrement repeint, équipé de climatisation réversible dans le séjour et la chambre, et un aménagement de cuisine est prévu dans le courant du mois de Juin. Enfin, il bénéficie d'un garage fermé au sous-sol Disponible le 01-03-2026 Loyer: 842.00 Dont provision sur charges : 60 par mois (régularisation annuelle) Honoraires charge locataire : 564,81 TTC dont Frais de visite / dossier / rédaction du bail 434,37 TTC dont honoraires état des lieux : 130,44 TTC Dépôt de garantie : 782 Montant estimé des dépenses annuelles d'énergie pour un usage standard : entre 580 et 840 par an. Prix moyens des énergies indexés au 01/01/2021 (abonnement compris).
43.05 m²
2
1
1
1
4 sur 4
20260301
60 € / mois
Oui
Consommations énergétiques
Logement économe
208
Logement énergivore (kWhEP/m2/an)
Émissions de gaz à effet de serre
Faible émission de GES
6
Forte émission de GES(kgeqCO2/m2/an)
Contact FRANCES IMMOBILIER
Contacter gratuitement à l'aide du formulaire ci-dessous.