Magnifique loft avec climatisation, 2 places de parking, jardin, piscine et salle de sport !!!
Mérignac 33700
0
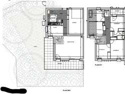
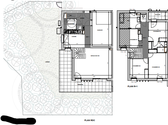
Dans une petite copropriété de 6 lots, venez découvrir ce superbe loft au style industriel.
Il est situé dans un quartier pavillonnaire à quelques minutes à pied du tram A (direction Bordeaux/Aéroport de Mérignac).
Intimité assuré et originalité garantie !
Le rez-de-chaussée est composé de la pièce de vie avec plusieurs espaces : salon, séjour et cuisine ouverte/équipée.
La partie nuit se présente de la façon suivante : deux chambres avec accès direct à une terrasse exposée Sud-Ouest (avec de grands rangements), une salle de bain (avec baignoire et douche), un espace bureau/atelier et un WC séparé.
À l'étage, vous serez charmés par la belle et grande suite parentale composée d'une chambre avec placards, une salle d'eau, un dressing puis un WC séparé.
Les plus : le jardin, le calme, l'emplacement, la climatisation, le poêle à bois ainsi que la piscine et la salle de sport.
Petite copropriété sécurisée et entretenue qui offre un cadre de vie idéal (un espace piscine pour les moments de détente et une salle de sport équipée d'un Sauna et d'appareils de musculation pour les plus sportifs).
RARE !!! N'attendez plus pour venir le visiter !
Nadège PETIOT : votre conseillère à votre disposition 7jours/7.
Contactez-moi pour l'estimation de votre bien : l'avis de valeur est offert !
Cette annonce référence 282794 vous est présentée par votre agent commercial BSK Immobilier NADEGE PETIOT (EIRL) immatriculé au RSAC de BORDEAUX (33000) sous le numéro 84152424200010.
Prix du bien : 595 000,00 €
Les honoraires d'agence sont à la charge du vendeur.
A propos de la copropriété :
Pas de procédure en cours.
Nombre de lots : 4
Charges prévisionnelles annuelles : 1 800,00 €
A propos des performances énergétiques :
Date de réalisation du diagnostic énergétique : 11/09/2023
Score DPE : 112 kWhEP/m²/an
Score GES : 3 kgepCO2/m²/an
Montant estimé des dépenses annuelles d'énergie pour un usage standard : entre 818.00 € et 1106.00 € par an. Prix moyens des énergies indexés sur l'année 2023 (abonnements compris).
Les informations sur les risques auxquels ce bien est exposé sont disponibles sur le site Géorisques : www.georisques.gouv.fr
124 m²
4 798 €
4
4
1
1
2
2011
Oui
Consommations énergétiques
Logement économe
112
Logement énergivore (kWhEP/m2/an)
Émissions de gaz à effet de serre
Faible émission de GES
3
Forte émission de GES(kgeqCO2/m2/an)
Contact Iad France - Nadège PETIOT
Contacter gratuitement à l'aide du formulaire ci-dessous.