Non loin du centre-ville de Mérignac, dans un quartier qui se distingue par son esprit village et sa quiétude résidentielle. Également réputée pour la qualité de ses commerces, et ses équipements complets, cette adresse comble toutes les attentes. Le tramway se trouve à 2min à pied.
Son architecture contemporaine et élégante avec ses toitures en tuiles, ses façades en parement brique moulé main et en enduit dans les tons blanc et beige s'harmonisent parfaitement avec son environnement.
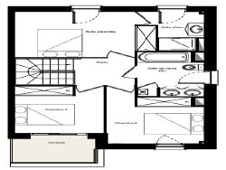
La maison se compose d'une entrée avec une buanderie ainsi qu'un WC indépendant. Vous arriverez ensuite sur une belle pièce de vie de 35m2 donnant sur un jardin/terrasse exposé Ouest. A l'étage, vous trouverez trois chambres dont une suite parentale avec salle d'eau privative, une salle de bains avec WC et double vasque ainsi qu'une seconde terrasse.
Ses prestations, sa localisation ainsi que le cadre en font un bien très prisé.
Un garage ainsi qu'une place de parking extérieure complètent ce bien.
Honoraires à la charge du vendeur. DPE en cours. Les informations sur les risques auxquels ce bien est exposé sont disponibles sur le site Géorisques : georisques.gouv.fr. Ce bien vous est proposé par un agent commercial (Entreprise individuelle).