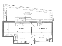
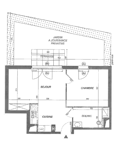
REF 225807 Venez découvrir ce superbe studio de 34 m2 totalement rénové qui vous séduira pour un premier achat ou un investissement. Situé au coeur d'un square verdoyant à proximité de toutes les commodités, au sein d'une copropriété de standing avec piscine, terrain de tennis et gardien. Dans un environnement verdoyant, ce studio vous séduira par son agencement en 2 pièces dans lequel vous profiterez d'un bel espace avec une cuisine entièrement équipée et aménagée, salle à manger prolongée par un coin salon, une salle de douche moderne. Montant estimé des dépenses annuelles d'énergie pour un usage standard : 631: EUR Année de référence : 2019. Les informations sur les risques auxquels ce bien est exposé sont disponibles sur le site Géorisques : www.georisques.gouv.fr
34 m²
6 029 €
2
1
1
1
1 sur 4
1973
Est
Oui
Oui
Oui (19744 lots)
Consommations énergétiques
Logement économe
210
Logement énergivore (kWhEP/m2/an)
Émissions de gaz à effet de serre
Faible émission de GES
44
Forte émission de GES(kgeqCO2/m2/an)
Contact PEREIRA
Contacter gratuitement à l'aide du formulaire ci-dessous.