Magnifique T3 avec vue mer, emplacement de rêve à deux pas d
Propriano 20110
0
Honoraires à la charge de l'acquéreur (Prix hors honoraires : 340000 euros).
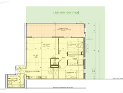
Très belle opportunité pour cet appartement T3 neuf, jamais habité, vous serez les premiers occupants, réalisé avec des matériaux de qualité, bénéficiant d'une vue mer et d'un accès plage aisé à pied. L'appartement d'environ 73 m2 vous offre un beau séjour / cuisine s'ouvrant sur une spacieuse terrasse couverte et un jardin arboré d'environ 90 m2 à usage privatif, le tout avec vue mer sur la baie de Propriano. L'appartement vous offre également un agréable coin nuit composé de deux chambres avec placards, une salle d'eau et un toilette indépendant. Un cellier et une place de stationnement privative complètent le confort de ce bien. Vous apprécierez la qualité de l'ensemble immobilier réalisé par un constructeur de renom sur Propriano et ses beaux matériaux ; Carrelage grès cérame 60x60, Menuiseries Schucco, Climatisation réversible, eau chaude sanitaire par thermodynamique, salle d'eau avec bac à douche extra plat 80x120, wc suspendu ... Vous apprécierez également son classement énergétique AA. Ses atouts ; Sa situation au calme au sein d'une résidence neuve en coeur de ville, tous les commerces à proximité, et un accès direct à la plage, au port de Propriano ... Tous ces points en font une belle opportunité de vie à l'année mais aussi un pied à terre idéal assorti d'un réel potentiel locatif saisonnier. N'hésitez pas à me contacter pour tout renseignement complémentaire et visite.
Cette annonce vous est proposée par PERAN - EI - NoRSAC: 831300298, Enregistré à Greffe du tribunal de commerce de AJACCIO - Annonce rédigée et publiée par un Agent Mandataire -
72.67 m²
4 885 €
19 m²
3
2
1
1
4.41 %
26/12/2024
2024
Sud
1
1
Oui
Oui
Oui (30 lots)
Consommations énergétiques
Logement économe
46
Logement énergivore (kWhEP/m2/an)
Émissions de gaz à effet de serre
Faible émission de GES
1
Forte émission de GES(kgeqCO2/m2/an)
Contact Peran Daniel
Contacter gratuitement à l'aide du formulaire ci-dessous.