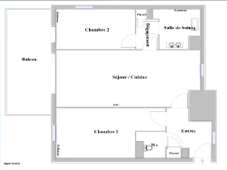
Magnifique T3 de 66 m² avec sa terrasse de 14 m², un double stationnement et une cave
Gilette 06830
0
La Résidence HARMONIA, est une résidence innovante et durable qui se positionne comme une nouvelle alternative à l'habitat.
Engagée dans une démarche de qualité environnementale, Harmonia
bénéficie du référentiel ÉCOVALLÉE QUALITÉ, label qui garantit un niveau exigeant de performance environnementale.
Ici un magnifique T3 de 66 m² avec sa terrasse de 14 m², un double stationnement en sous sol et une cave
Prix : 355 000euros FAI, honoraires à charge vendeur.
DPE : A / GES : A
Montant estimé des dépenses annuelles d'énergie pour un usage standard entre 340 euros et 530 euros indexées aux années 2021, 2022 et 2023.
Pour visiter et vous accompagner dans votre projet, contactez Yannick BLANC, au 06 51 96 69 14 ou, par courriel à ya.blanc@proprietes-privees.com. Selon l'article L.561.5 du Code Monétaire et Financier, pour l'organisation de la visite, la présentation d'une pièce d'identité vous sera demandée. Cette annonce a été rédigée sous la responsabilité éditoriale de Yannick BLANC agissant sous le statut d'agent commercial immatriculé au RSAC ANTIBES 493615611 auprès de SAS PROPRIETES PRIVEES, au capital de 44 920 euros, ZAC LE CHÊNE FERRÉ - 44 ALLÉE DES CINQ CONTINENTS 44120 VERTOU ; SIRET 487 624 777 00040, RCS Nantes. Carte Professionnelle Transactions sur immeubles et fonds de commerce (T) et Gestion immobilière (G) n°CPI 4401 2016 000 010 388 délivrée par la CCI Nantes - Saint Nazaire. Compte séquestre n°30932508467 BPA SAINT-SEBASTIEN-SUR-LOIRE (44230). Garantie GALIAN-SMABTP - 89 rue de la Boétie, 75008 Paris - n°28137 J pour 2 000 000 euros pour T et 120 000 euros pour G. Assurance responsabilité civile professionnelle par GALIAN-SMABTP n° de police 28137.J
Mandat réf : 424399 - Le professionnel garantit et sécurise votre projet immobilier.
Yannick BLANC (EI) Agent Commercial - Numéro RSAC : ANTIBES 493615611 - .
Les informations sur les risques auxquels ce bien est exposé sont disponibles sur le site Géorisques : www. georisques. gouv. fr
Référence annonce : 424399YANB
Date de réalisation du diagnostic : 17/01/2025
Yannick BLANC (EI) Agent Commercial - Numéro RSAC : ANTIBES 493615611 - .
66 m²
5 379 €
3
2
1 sur 2
Oui
Consommations énergétiques
Logement économe
50
Logement énergivore (kWhEP/m2/an)
Émissions de gaz à effet de serre
Faible émission de GES
1
Forte émission de GES(kgeqCO2/m2/an)
Contact Yannick BLANC
Contacter gratuitement à l'aide du formulaire ci-dessous.