Magnifique T4 dernier étage / terrasses 60m2 / expo sud ouest
Lannion 22300
0
Honoraires à la charge du vendeur.
L'agence 'MON BIEN A LA MER', spécialiste de l'immobilier neuf sur les côtes Bretonnes, vous présente :
Très rare : Nouvelle réalisation en plein centre de LANNION : à pied de tous commerces, 7 min à pied de la Gare. Nouveau : Résidence de standing en construction pour fin 2027, normes RE2020, Ascenseur, Frais de notaire réduits.
Au pied de la résidence : jardin collectif pour les résidents clos de mur 1000m2. Un havre de paix en plein centre ville! A 10 min en voiture des merveilleuses plages de la côte de Granit Rose.
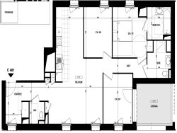
Ce T4 est situé au 4è et dernier étage, et offre séjour expo sud ouest traversant, entrée, 3 chambres, salle d'eau, salle de bains, 2 wcs, cave et deux parkings. Une loggia de 9,65m2 et une incroyable terrasse de 50m2 offrant une vue panoramique sur LANNION. Possibilité modification de plans intérieurs.
Nous consulter.
Honoraires à la charge du vendeur. Non soumis au DPE. Les informations sur les risques auxquels ce bien est exposé sont disponibles sur le site Géorisques : georisques.gouv.fr.
Votre conseiller MON BIEN A LA MER : Gérant - .fr MON BIEN A LA MER Carte T CPI 2201 2018 000 025 040 RCP ACM IARD B1 7025278
83.25 m²
5 934 €
30 m²
4
3
1
1
2
4 sur 4
Oui
Oui
2
2
Oui
Contact mon bien à la mer
Contacter gratuitement à l'aide du formulaire ci-dessous.