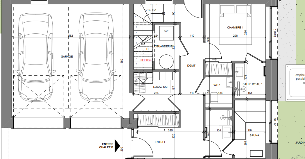
Idéalement placé dans le centre de Saint didier au Mont d'Or, ce Magnifique T5 Attique de 151 m² saura vous séduire par sa pièce à vivre de 73m² et ses nombreuses terrasses. Il est composé d'une entrée, d'un grand séjour avec cuisine de 73m² ouverte sur une première terrasse de 50m² avec un accès à une terrasse sur le toit de 63m² où vous pourrez passer des moments privilégiés. Enfin, une buanderie, un WC séparé, de trois chambres, d'une salle de bain et d'une salle d'eau. L'appartement est vendu avec un garage double en sous-sol. Pour tout renseignement, vous pouvez me contacter, Je serai ravi d'échanger et vous aider à concrétiser votre beau projet Bâtiment basse consommation, faibles charges Visuel non contractuel Merci de contacter votre conseiller Grégory pour plus d'informations Copropriété de 15 lots - dont 15 lots habitation. (Pas de procédure en cours). Charges annuelles : 2700 euros.