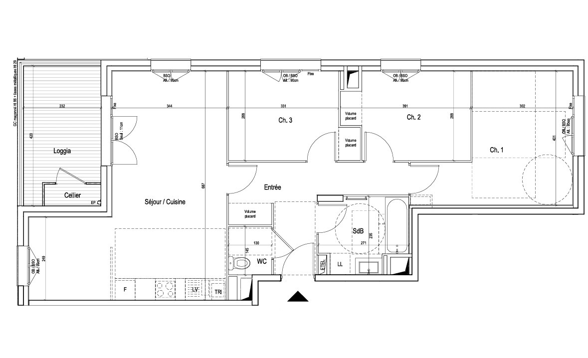
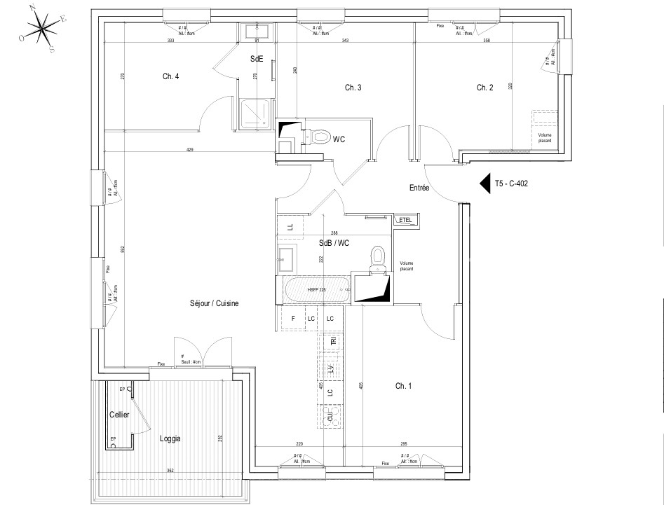
Niché au coeur de Vaulx-en-Velin, ce magnifique appartement T5+ de 96 m², neuf et conforme PMR, vous attend. L'ascenseur vous mènera à votre havre de paix, où vous trouverez 4 chambres spacieuses, 2 salles de bains et 2 WC, dont un indépendant. Profitez également d'une place de stationnement intérieur et d'un balcon de 10 m² pour admirer la vue. Le sous-sol complète cette offre idéale.
Imaginez-vous dans ce cocon, où chaque pièce est baignée de lumière naturelle. Les matériaux de qualité et les finitions soignées vous séduiront. Le balcon, véritable extension de votre intérieur, vous invite à prendre votre café matinal en toute tranquillité.
À seulement 5 minutes à pied, retrouvez 3 crèches, une maternelle, une école élémentaire et une alimentation générale et le futur tram T9. En 10 minutes en voiture, accédez à 8 métros, 17 tramways, 2 collèges, 7 médecins généralistes et 4 restaurants. Un parc et jardin se trouve à 15 minutes à pied pour des moments de détente en famille.
Prix = 259 000 en TVA 5,5%, sous conditions d'éligibilité Parking sous-sol inclus Remise des clés en décembre 2026
Et bénéficiez aussi des avantages du neuf : -Financez jusqu'à 50% de votre achat, sans intérêts ! -Frais de notaire réduits à 2,5% au lieu de 8% -Exonération partielle de la taxe foncière (2 ans) -Charges réduites (Bâtiment BBC) -Dernières normes RT2012/RE2020
Photos non contractuelles et à caractère d'ambiance.
Dans une copropriété de 55 lots. Aucune procédure n'est en cours. Non soumis au DPE. Les informations sur les risques auxquels ce bien est exposé sont disponibles sur le site Géorisques : georisques.gouv.fr.