Dans le verdure et la quiétude de l'ouest lyonnais, sur la commune de DARDILLY, NOVEA IMMOBILIER a l'immense plaisir de vous proposer à la vente ce magnifique appartement. Niché au 2 ème et dernier étage d'une copropriété de 2019, ce bien d'exception, une superbe toit-terrasse de 174 m² conjugue luxe, espace et lumière le tout dans un cadre verdoyant.
COIN JOUR
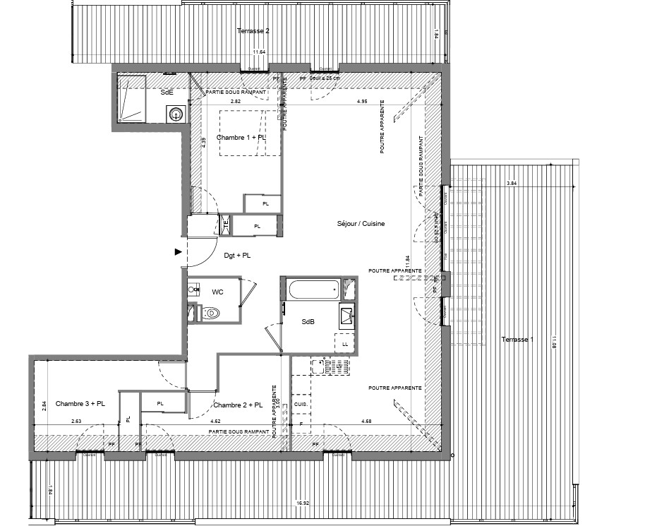
Dès les premières secondes dans le bien, le ton est donné et la magie opère: vous serez accueillis par une majestueuse pièce de réception d'environ 80 m², véritable bijou baigné de lumière. Vous tomberez immédiatement sous le charme de l'ensoleillement apporté par ses immenses ouvertures, par sa double exposition Ouest et Sud et du design épuré aux finitions soignées. Vous sentirez comme un effet de liberté grâce à ses volumes à couper le souffle. Vous bénéficierez d'un accès direct aux deux terrasses depuis le salon. La première, intimiste avec ses 20 m² sera parfaite pour savourer un café en toute tranquillité. La seconde de plus de 80 m², vous offrira un véritable havre de paix, idéal pour vos soirées d'été, vos repas entre amis ou simplement des instants de détente allongés sur un bain de soleil, un verre à la main allongés sur un transat. Le tout, à l'abri des regards, dans une intimité préservée Le coin des gastronomes, ouvert sur le séjour et intégralement meublé, s'intègre avec élégance dans cet espace de vie, pensé pour vous offrir un confort absolu. Vous pourrez ainsi profiter de vos convives tout en leur concoctant de bons petits plats et en laissant s'exprimer le cordon bleu qui sommeille en vous.
COIN NUIT
En parfaite adéquation avec sa surface, cet appartement vous propose un agencement et une disposition idéale avec coin nuit composé de 3 chambres fermées, comprises entre 12 et 14 m2 dotées de grands placards et exposées nord vous garantissant ainsi des nuits d'été douces. Vous découvrirez ensuite un espace d'environ 9 m2 ouvert, pouvant accueillir un coin jeu ou TV pour les enfants et / ou facilement transformable en bureau fermé pour répondre aux besoins actuels de télétravail. Enfin, une somptueuse suite parentale de 28 m², véritable cocon, s'offre à vous. Cet espace se distingue par son vaste dressing, sa salle d'eau privative, et surtout, sa terrasse exclusive de 20 m². Ce coin intimiste vous permettra de profiter de moments précieux, face à la verdure, en toute tranquillité. jouissant d'une intimité à toute épreuve.
LES PLUS
Copropriété récente Dernier étage toit terrasse Parfait état Garage en sous-sol proposé en sus du prix Environnement vert et résidentiel
Vous êtes à la recherche d'un bien rare et prestigieux, offrant des volumes impressionnants, un cadre de vie unique et des prestations haut de gamme ? Ce toit-terrasse est une opportunité à ne pas manquer. Contactez-nous dès maintenant pour organiser une visite et qui provoquera à coup sûr, une véritable coup de coeur.
Honoraires à la charge du vendeur. Dans une copropriété de 42 lots. Quote-part moyenne du budget prévisionnel 2 840 /an. Aucune procédure n'est en cours. Classe énergie C, Classe climat C Montant estimé des dépenses annuelles d'énergie pour un usage standard : entre 1292.10 et 1292.10 sur les années 2021, 2022 et 2023 (abonnements compris). Les informations sur les risques auxquels ce bien est exposé sont disponibles sur le site Géorisques : georisques.gouv.fr.
Votre conseiller NOVEA Immobil...
174 m²
3 994 €
6
4
1
1
2 (séparés)
2 sur 2
240.00 € / mois
2019
Sud
Ouest
Oui
2
3
Oui
Oui (42 lots)
Consommations énergétiques
Logement économe
59
Logement énergivore (kWhEP/m2/an)
Émissions de gaz à effet de serre
Faible émission de GES
11
Forte émission de GES(kgeqCO2/m2/an)
Contact NOVEA Immobilier Lyon 5
Contacter gratuitement à l'aide du formulaire ci-dessous.