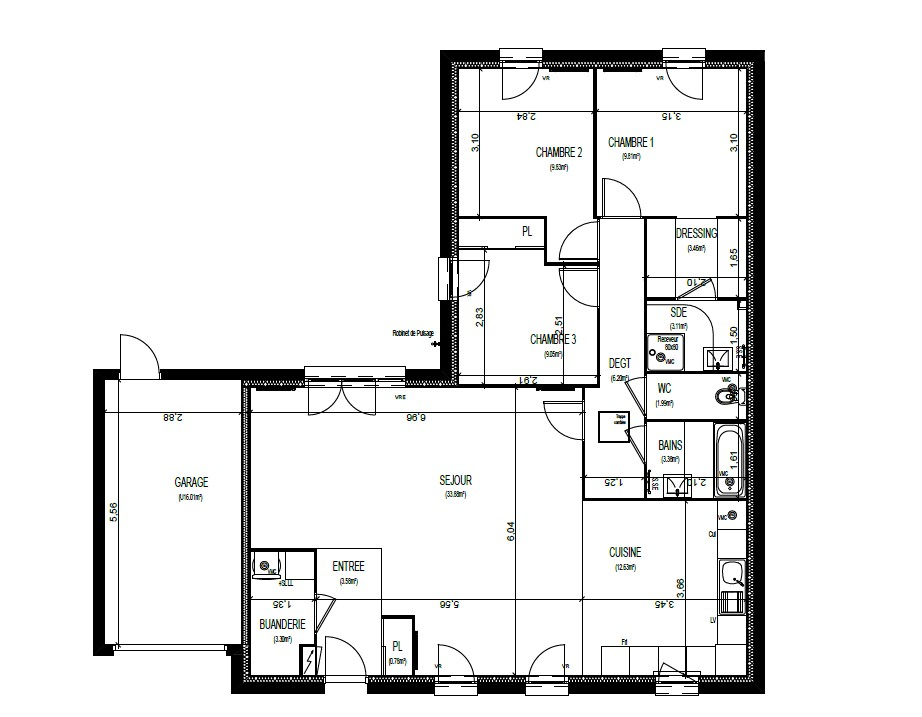
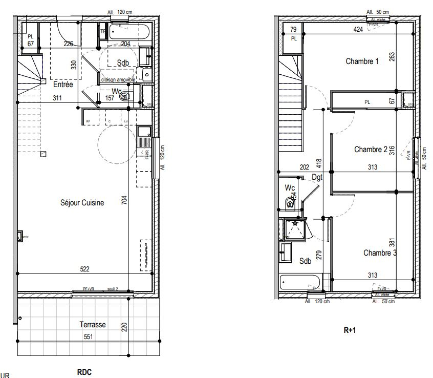
FRANCHISE OUEST IMMO vous propose en exclusivité cette belle maison, idéalement située sur le secteur Oullins / Pierre-Bénite, dans un environnement calme et recherché. Développant environ 90 m2 habitables (surface au sol 179 m2), la maison est édifiée sur deux niveaux et offre un fort potentiel d'évolution. Elle se compose actuellement d'un séjour lumineux. D'une cuisine indépendante. De quatre chambres, dont une en rez-de-chaussée. D'une salle de bains. Et de nombreux rangements. En complément, une vaste cave d'environ 60 m2 ainsi qu'un garage viennent enrichir les prestations de ce bien. À l'extérieur, vous profiterez d'un agréable jardin arboré d'environ 350 m2, exposé plein sud, offrant un cadre verdoyant et ensoleillé, idéal pour les beaux jours. Possibilité d'extension permettant d'augmenter la surface habitable selon vos projets. Diagnostic de performance énergétique : classe E. Bien rare sur le secteur, offrant charme, potentiel et emplacement privilégié. Pour plus de renseignements ou pour organiser une visite, contactez-nous au 06 50 00 20 02 ou 06 67 11 22 11 Référence : 0202
93 m²
5 108 €
5
4
Contact TALISSA
Contacter gratuitement à l'aide du formulaire ci-dessous.