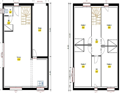
Maison année 2025 r+1 de 109 m2 Habitable 4 chambres avec garage ,terrasse, clôturé sur un terrain de 280 m² d angle
Montagnac 34530
0
Située dans la charmante ville de Montagnac, cette maison bénéficie
d'un emplacement privilégié. Proche des commodités, des commerces et
des points d'intérêt de la région, elle offre un cadre de vie idéal pour ses
résidents. Avec ses espaces verts, ses parcs et ses activités de plein air
à proximité, Montagnac est une destination de choix pour les amoureux
de la nature et les familles à la recherche d'une vie tranquille et
apaisante.
prix du bien 209000 euros honoraires d agence a charge vendeur
Cette charmante maison hors d'eau hors d' air ,de 4 chambres avec garage, terrasse ,dispose d'un terrain d'une surface de 300 m²,
offrant ainsi un espace extérieur idéal pour profiter des beaux jours. De
plus, elle dispose de deux places de parking, facilitant le stationnement
des véhicule
clôture et crépis de la maison compris
sans chauffage
Bien non soumis au DPE
Pour visiter et vous accompagner dans votre projet, contactez Jean-Marc MACQUET, au 0682091285 ou, par courriel à jm.macquet@proprietes-privees.com.
Selon l'article L.561.5 du Code Monétaire et Financier, pour l'organisation de la visite, la présentation d'une pièce d'identité vous sera demandée.
Cette présente annonce a été rédigée sous la responsabilité éditoriale de Jean-Marc MACQUET agissant sous le statut d'agent commercial immatriculé au RSAC MONTPELLIER 351 161 708 auprès de SAS PROPRIETES PRIVEES, au capital de 44 920 euros, ZAC LE CHÊNE FERRÉ - 44 ALLÉE DES CINQ CONTINENTS 44120 VERTOU; SIRET 487 624 777 00040, RCS Nantes. Carte Professionnelle Transactions sur immeubles et fonds de commerce (T) et Gestion immobilière (G) n°CPI 4401 2016 000 010 388 délivrée par la CCI Nantes - Saint Nazaire. Compte séquestre n°30932508467 BPA SAINT-SEBASTIEN-SUR-LOIRE (44230). Garantie GALIAN-SMABTP - 89 rue de la Boétie, 75008 Paris - n°28137 J pour 2 000 000 euros pour T et 120 000 euros pour G. Assurance responsabilité civile professionnelle par GALIAN-SMABTP n° de police 28137.J
Mandat réf : 422614 - Le professionnel garantit et sécurise votre projet immobilier.
Jean-marc MACQUET (EI) Agent Commercial - Numéro RSAC : MONTPELLIER 351 161 708 - .
109 m²
1 917 €
43 m²
300 m²
5
4
2
2
2025
Ouest
Oui
Contact Jean-marc MACQUET
Contacter gratuitement à l'aide du formulaire ci-dessous.